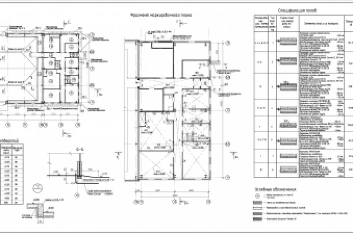
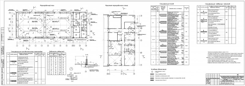
6.4_Воркута. Теплая стоянка_маркировочные планы
Для полной функциональности этого сайта необходимо включить JavaScript.
Ялта
44 года
На сайте с: 07.10.2014
Видеть и делать новое — очень большое удовольствие.
Хлопец Артем
Artemproekt
Рейтинг: 192
не верифицирован
Всего отзывов:
2
0
Выполнил заданий:
3
Работ в портфолио:
122
Типовых услуг:
0
Работ на продажу:
0
Был на сайте:
2025-03-20 в 02:19
inbox
profintem@gmail.com
profintem.wordpress.com
Youtube
Предложить работу
Добавить в избранное
Добавить рекомендацию
Пожаловаться
Дизайн пространства
36
0
6.4_Воркута. Теплая стоянка_маркировочные планы
Используемые навыки:
Архитектура зданий и сооружений
Описание
Решение
Результат
Соавторы
Презентация проекта
Примеры реализации
Описание
Маркировочные планы.
Ссылки на примеры реализации
proekt180.com
Презентация проекта
Оценили проект:
0
×
Оценили проект
×
Авторизация
Для того чтобы оценивать проекты, вам нужно войти на сайт
Другие проекты
Все проекты
3.1_Очистные_общие данные
1.8_Сервисный центр г. Серов_схема теплоснабжения
Разрезы по балочной клетке.
FREELANCE.RU
Toggle navigation
Нанять фрилансера
Заказчику
Найти по специализации
Найти по услугам
Провести конкурс
Разместить задание
Виртуальный HR
Другое
Найти работу
Фрилансеру
Найти задание
Присоединиться к команде
Участвовать в конкурсе
Предложить услугу
Другое
Возможности
Для заказчика
Для фрилансера
Вход
Разместить задание
▲