Проекты деревянных домов, бань - разбревновка АТ венцы

Uma Projectstroy

Рейтинг: 154
не верифицирован
Всего отзывов: 0
  • Работ в портфолио: 104
  • Типовых услуг: 1
  • Работ на продажу: 0
  • Зарегистрирован: 15.03.2012
Был на сайте:

Проект одноэтажного дома

Описание

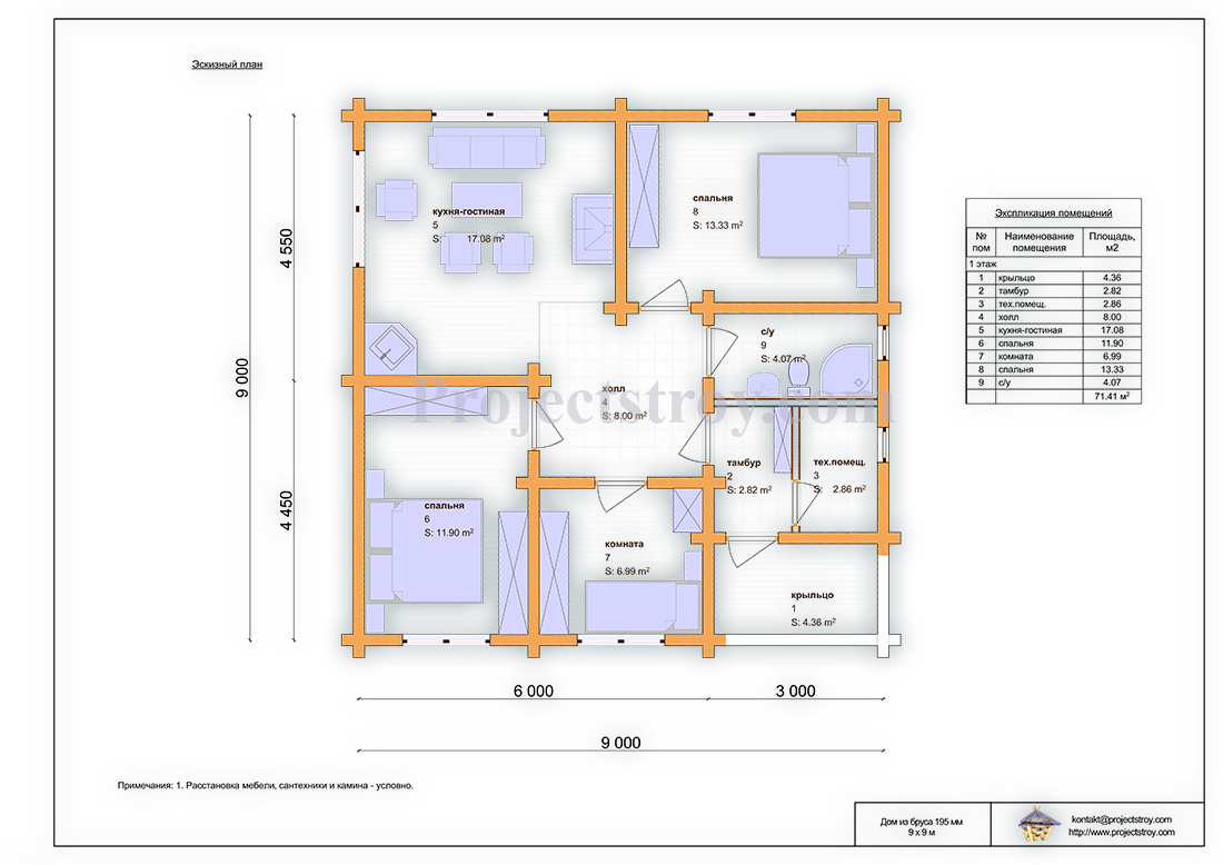
Проект одноэтажного деревянного дома 9 х 9 м
Сруб из профилированного бруса 195 мм с четырехскатной кровлей

Показатели для сметного расчета строительства A-23:
-общая площадь - 71.4 кв. м;
-объем бруса ПБ 195х(h)145 мм ~ 52 куб. м (отход~18%);
-пог. длина бруса ~1840 м;
-балки перекрытий - 100х150 мм;
-стропила - 50х200 мм;
-площадь кровли и периметр - 135 кв. м и 45 пог. м;
-угол кровли ~ 20 гр.;
-пог. м фундамента дома (ленточный - плита - сваи по востр.) - 67 м;
-высота 1-го этажа - более 2.87 м

Советы архитектора по проекту:
по возможности увеличение пятна застройки строения

Ссылки на примеры реализации

 projectstroy.com/project_a_23.html

Презентация проекта

pic3202913.jpg
a_23_1et.jpg

Оценили проект:

0