Проекты деревянных домов, бань - разбревновка АТ венцы

Uma Projectstroy

Рейтинг: 154
не верифицирован
Всего отзывов: 0
  • Работ в портфолио: 104
  • Типовых услуг: 1
  • Работ на продажу: 0
  • Зарегистрирован: 15.03.2012
Был на сайте:

Баня из профилированного бруса

Используемые навыки:

Описание

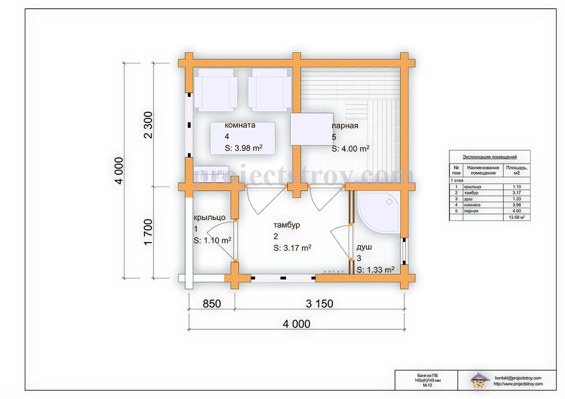
Проект небольшой бани из профилированного бруса 4 х 4 м
Мечтаете о бане? Есть проект для строительства своими руками

Ссылки на примеры реализации

 projectstroy.com/project_m_12.html

Презентация проекта

pic3295736.jpg
m_12_1et.jpg

Оценили проект:

0