Рейтинг: 165
Паспорт верифицирован
Всего отзывов: 0
  • Работ в портфолио: 50
  • Типовых услуг: 1
  • Работ на продажу: 5
  • Возраст: 52 года
  • Стаж работы: 4 года
  • Зарегистрирован: 08.10.2022
  • Образование: Бакалавриат
  • Юридический статус:Самозанятый
  • Стоимость услуг (руб): 500 за час
Был на сайте:

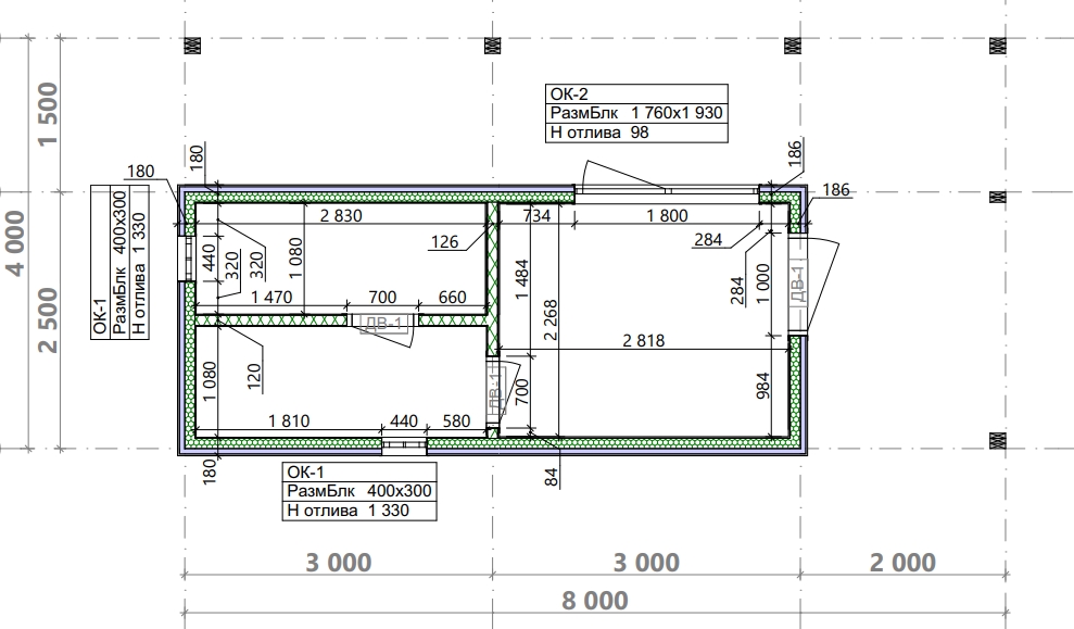
Баня на сваях.

Описание

Баня для круглогодичного пользования. Терраса под одной крышей с домом. Крыша двухскатная, уклон 8
градусов. Фундамент свайный. Чердака нет. Размеры в осях 2.5х6. Минимальная высота 1-го этажа 2,1м.,
максимальная 2.4м. Технологические проёмы: в стене под печь, в крыше под трубу. Каркас из сухой не строганной доски.

Решение

В ходе работы над проектом были применены: расчёты нагрузок в каркасе; работа в программе Архикад; работа и согласования с заказчиком.

Результат

В результате мы получили готовый объект, который был принят заказчиком и построен.

Ссылки на примеры реализации

 t.me/Evgeniy_348

Презентация проекта

pic4628819.jpg
5.jpg
6.jpg

Оценили проект:

0