Рейтинг: 165
Паспорт верифицирован
Всего отзывов: 0
  • Работ в портфолио: 50
  • Типовых услуг: 1
  • Работ на продажу: 5
  • Стаж работы: 3 года
  • Тип занятости: Полный фриланс
  • Юридический статус:Самозанятый
Был на сайте:

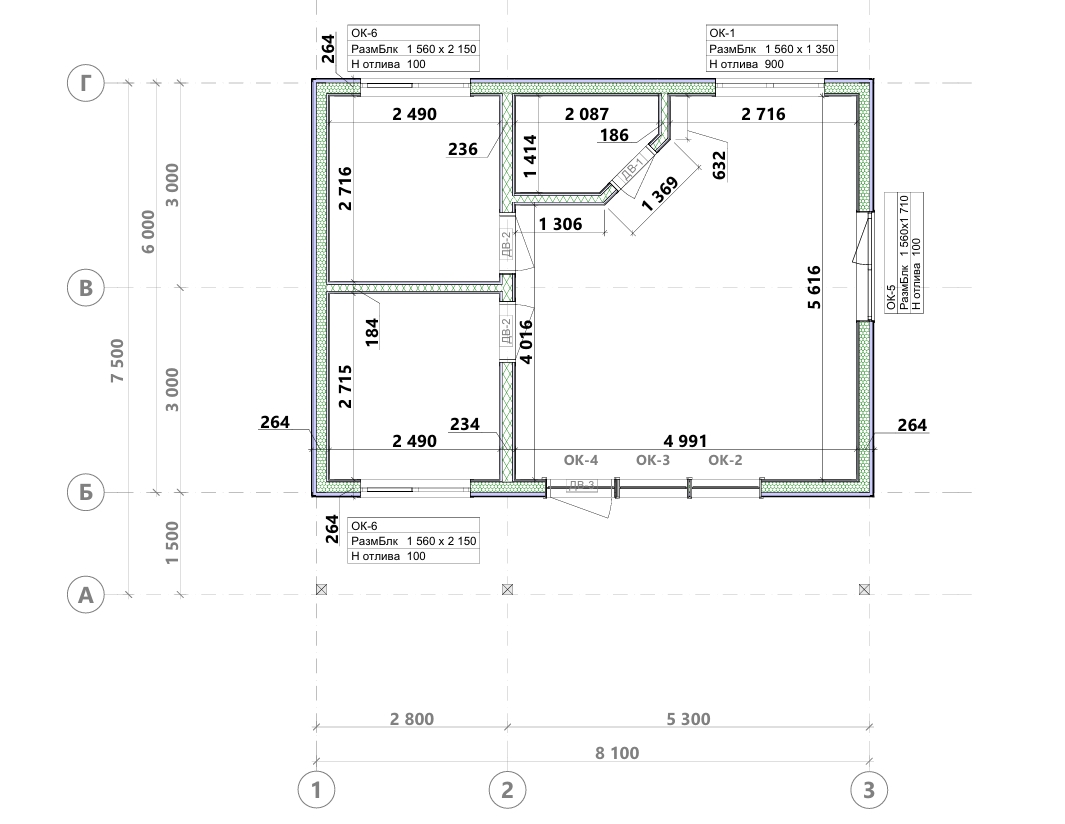
Дом одноэтажный

Описание

Дом одноэтажный индивидуальный, для круглогодичного использования. Имеет террасу под общей с домом
крышей. Крыша двускатная разноуровневая, уклон 12 градусов. Фундамент свайный. Размеры в осях 6х8м.
Минимальная высота в помещениях 2,1м., максимальная 3,1м. Для строительства применяется деревянная каркасная технология. В крыше предусмотрен портал под дымоход

Решение

В ходе работы над проектом были применены: расчёты нагрузок в каркасе; работа в программе Архикад; работа и согласования с заказчиком.

Результат

В результате мы получили готовый объект, который был принят заказчиком и построен.

Презентация проекта

3.jpg
4.jpg
10.jpg

Оценили проект:

0