Рейтинг: 165
Паспорт верифицирован
Всего отзывов: 0
  • Работ в портфолио: 50
  • Типовых услуг: 1
  • Работ на продажу: 5
  • Возраст: 52 года
  • Стаж работы: 4 года
  • Зарегистрирован: 08.10.2022
  • Образование: Бакалавриат
  • Стоимость услуг (руб): 500 за час
Был на сайте:

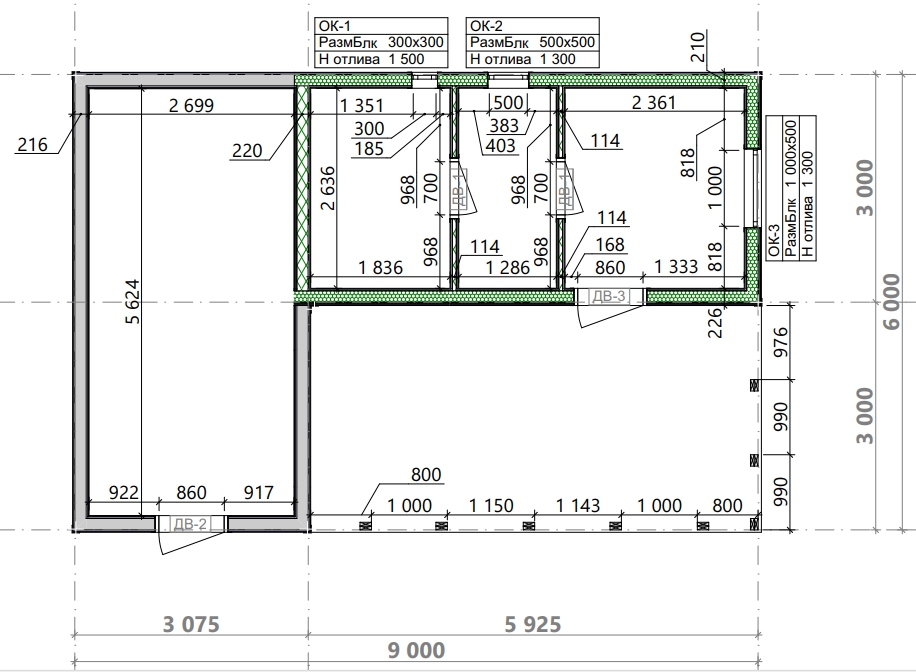
Дом - сауна

Используемые навыки:

Описание

Сауна для круглогодичного пользования. Крыша двухскатная разноуровневая. Есть терраса под общей крышей с
домом. Фундамент свайный. Чердака нет. В крыше и стене предусмотрены технологические проёмы под печь.
Размеры в осях 6х9. Высота 1-го этажа 3,1м.

Ссылки на примеры реализации

 t.me/Evgeniy_348

Презентация проекта

pic4628815.jpg
6.jpg

Оценили проект:

0