AUTOCAD | ЧЕРТЕЖИ | ПОЭТАЖНЫЕ ПЛАНЫ | ОЦИФРОВКА | ИНТЕРЬЕРЫ | 3D

Николай Фельдман nik0lay82

Рейтинг: 216
Паспорт верифицирован
Всего отзывов: 4 0
Выполнил заданий: 4
  • Работ в портфолио: 17
  • Типовых услуг: 0
  • Работ на продажу: 0
  • Возраст: 43 года
  • Зарегистрирован: 29.05.2018
Был на сайте:

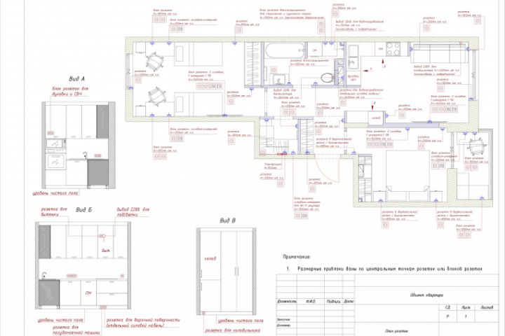
Один из листов дизайн проекта (план розеток)

Используемые навыки:

Описание

Дизайнер предоставил визуализацию квартиру (в примере представлен один лист из альбома - план розеток)

Задача:
1. Сделать альбом чертежей для реализации проекта
2. Самостоятельно расставить розетки и выключатели
3. Проработать план перегородок
4. Проработать многие чертежи основываясь на предоставленной визуализации

Работа была выполнена в 2 недельный срок. Заказчик остался доволен.

Презентация проекта

pic4422545.jpg

Оценили проект:

0