AUTOCAD | ЧЕРТЕЖИ | ПОЭТАЖНЫЕ ПЛАНЫ | ОЦИФРОВКА | ИНТЕРЬЕРЫ | 3D

Николай Фельдман nik0lay82

Рейтинг: 216
Паспорт верифицирован
Всего отзывов: 4 0
Выполнил заданий: 4
  • Работ в портфолио: 17
  • Типовых услуг: 0
  • Работ на продажу: 0
  • Возраст: 43 года
  • Зарегистрирован: 29.05.2018
Был на сайте:

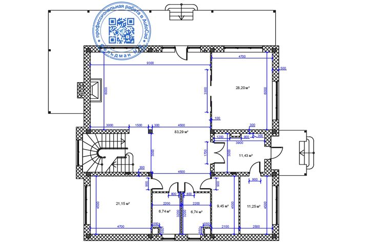
Оцифровка поэтажного плана коттеджа

Описание

Заказчиком было предоставлено фото поэтажного плана 2-х этажного коттеджа (здесь представлен 1 этаж).

Задачи:
1. оцифровать каждый этаж в AutoCad,
2. работу выполнить послойно,
3. просчитать и проставить площади помещений,
4. проставить размеры.

На выполнение ушло 3 часа.
Заказчику очень понравилось качество и оперативность выполнения.

Презентация проекта

pic4415275.jpg

Оценили проект:

0