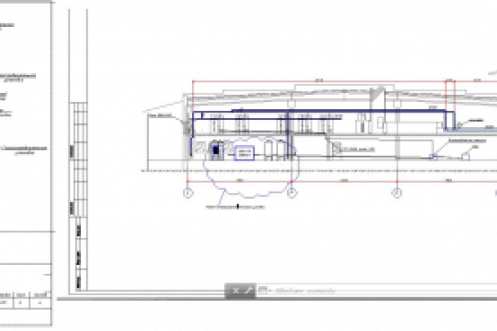
Компрессорные станции.
Для полной функциональности этого сайта необходимо включить JavaScript.
Санкт-Петербург
61 год
На сайте с: 06.08.2012
Михаил Селин
PiFus
Рейтинг: 1 966
не верифицирован
Всего отзывов:
0
Нейросаммари
Работ в портфолио:
65
Типовых услуг:
0
Работ на продажу:
0
Был на сайте:
2026-02-11 в 11:34
+7-921-797-46-08
inbox
telegram
whatsapp
mikl_spb@mail.ru
Предложить работу
Добавить в избранное
Добавить рекомендацию
Пожаловаться
Инженерия
60
0
Компрессорные станции.
Используемые навыки:
Машиностроение
Описание
Решение
Результат
Соавторы
Презентация проекта
Примеры реализации
Описание
Презентация проекта
Оценили проект:
0
×
Оценили проект
×
Авторизация
Для того чтобы оценивать проекты, вам нужно войти на сайт
Другие проекты
Все проекты
Док на английском
Расчеты, симуляторы.
Сжатый воздух. Раздача.
FREELANCE.RU
Toggle navigation
Нанять фрилансера
Заказчику
Найти по специализации
Найти по услугам
Провести конкурс
Разместить задание
Виртуальный HR
Другое
Найти работу
Фрилансеру
Найти задание
Присоединиться к команде
Участвовать в конкурсе
Предложить услугу
Другое
Возможности
Для заказчика
Для фрилансера
Вход
Разместить задание
▲