Рейтинг: 714
не верифицирован
Всего отзывов: 0
  • Работ в портфолио: 63
  • Типовых услуг: 0
  • Работ на продажу: 0
  • Возраст: 61 год
  • Зарегистрирован: 06.08.2012
Был на сайте:

Воздухоподготовка

Используемые навыки:

Описание

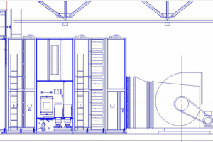
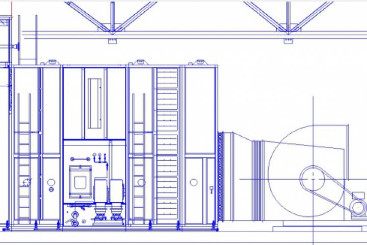
Установка подготовки воздуха (увлажнение, подогрев, осушение, охлаждение) 238.020 m3/h

Презентация проекта

pic4117446.jpg

Оценили проект:

0