Рейтинг: 172
не верифицирован
Всего отзывов: 0
  • Работ в портфолио: 3
  • Типовых услуг: 0
  • Работ на продажу: 0
  • Образование: Cпециалитет
  • Стаж работы: 18 лет
  • Юридический статус:Частное лицо
Был на сайте:

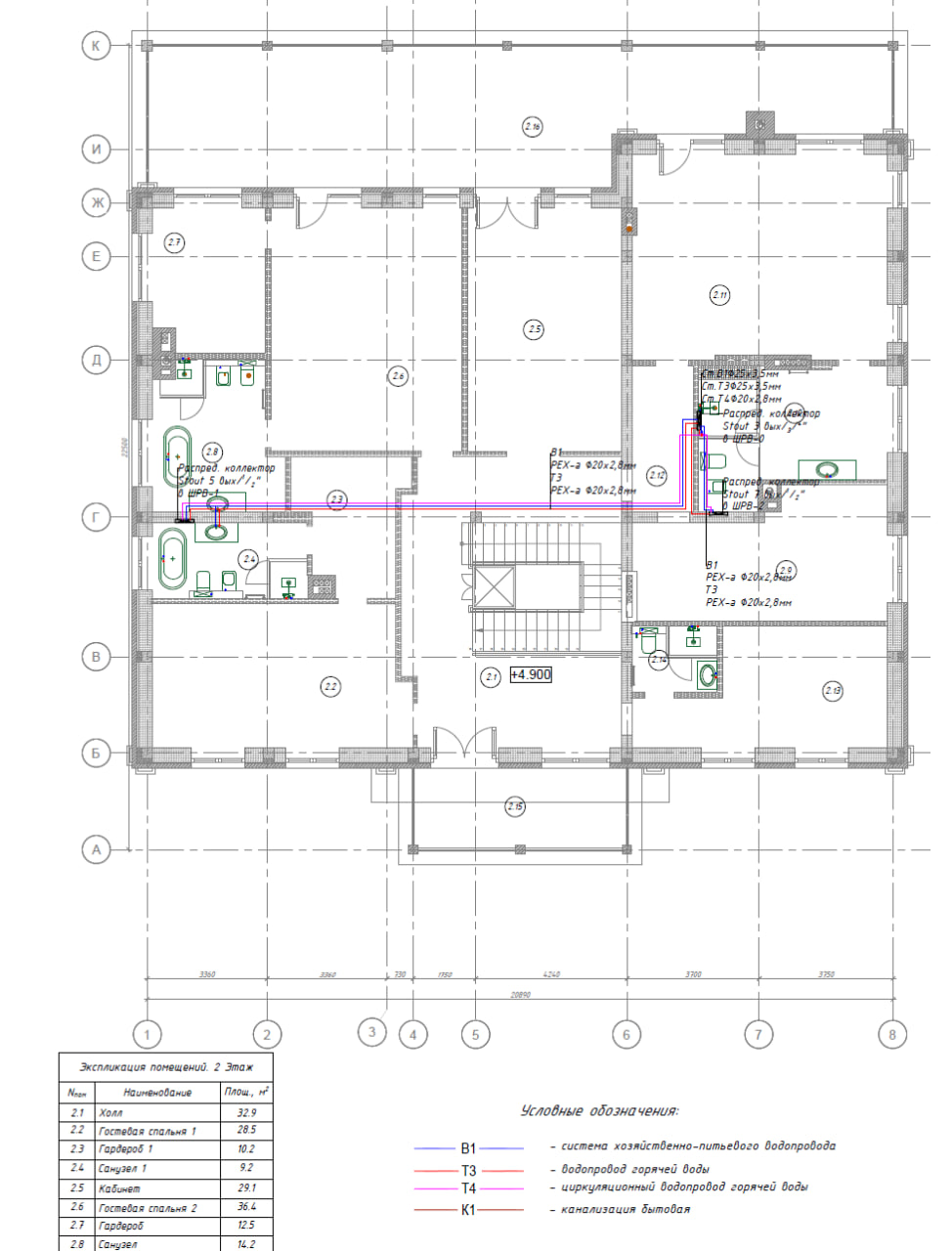
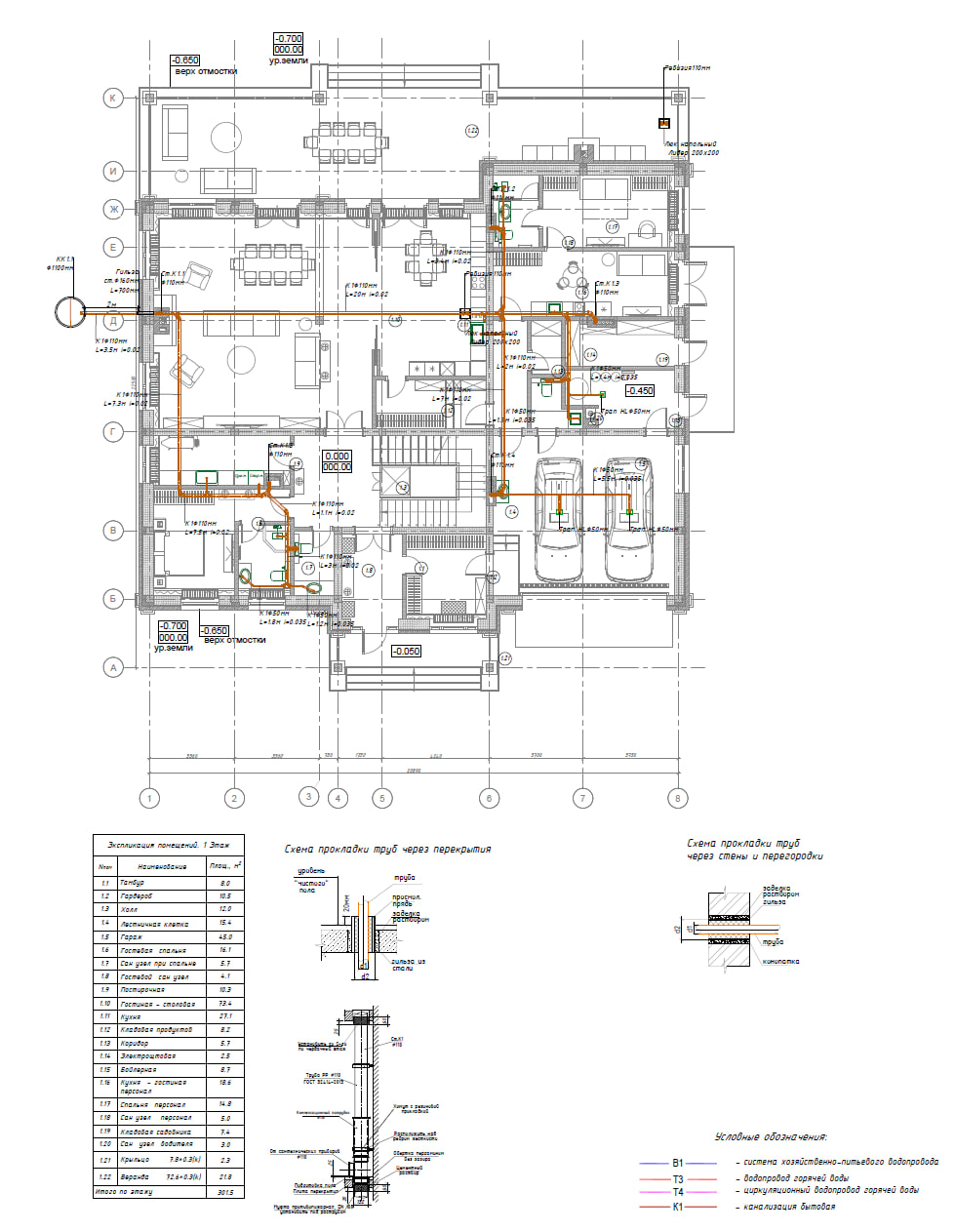
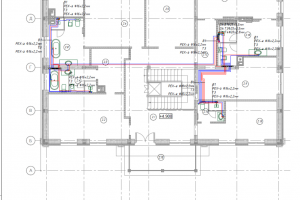
РАБОЧИЙ ПРОЕКТ Водоснабжения и канализация. По адресу: РФ, Московская область, КП «Гринфилд»

Описание

Общие данные
Обект: Индивидуальный, жилой дом предназначен для круглогодичного проживания. Количество постоянно
проживающих людей - 4 ( четыре). Количество гостей - 8 человек.
Объем проектирования включает основной жилой дом-2 этажа, ощая площадь-591,2м².
Проектом разработаны системы:
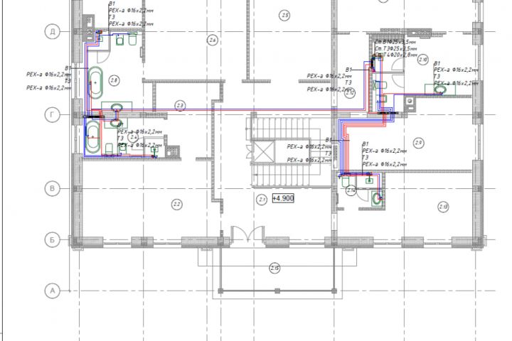
В1-система хоз-питьевого водоснабжения;
Т3-система горячего водоснабжения;
Т4-система рециркуляции горячего водоснабжения;
К1-система хоз-бытовой канализации.
*Система водоснабжения
Разработать рабочий проект устройства системы внутреннего водоснабжения.
Границы проектирования ввод воды ( ПНД 40) в дом ( помещение бойлерной).
Основанием для разработки являются:
-настоящее Техническое задание
-раздел АР.
*Схема разводки к приборам ХГВС лучевая. С установкой в коллекторах запорной арматуры и
автоматических воздухоотводчиков. Проектом предусмотрено отключение каждого из сантех приборов на коллекторе.

Решение

*Разводку системы водоснабжения запроектировать из труб из сшитого полиэтилена PEXa.
На всех открытых участках предусмотреть теплоизоляцию 6 мм. Проектирование выполнить с учётом
рекомендаций производителя
*Система канализации
Запроектировать систему канализации для помещений дома.
Подключение системы канализации к поселковой сети.
Границы проектирования ВК вывод (110 ПВХ) из основного дома до первого колодца.
Основанием для разработки являются:
-Техническое задание.
- раздел АР рабочего проекта
Разводку системы канализации запроектировать из труб ПЭ;
Стояки канализации шумоизолировать трубчатой изоляцией из вспененного полиэтилена толщиной не менее
10 мм.

Презентация проекта

photo_2025-11-14_00-07-49.jpg
photo_2025-11-14_00-07-11.jpg
photo_2025-11-14_00-07-15.jpg
photo_2025-11-14_00-07-18.jpg
photo_2025-11-14_00-07-24.jpg
photo_2025-11-14_00-07-31.jpg
photo_2025-11-14_00-07-35.jpg

Оценили проект:

0