Рейтинг: 172
не верифицирован
Всего отзывов: 0
  • Работ в портфолио: 3
  • Типовых услуг: 0
  • Работ на продажу: 0
  • Возраст: 46 лет
  • Стаж работы: 18 лет
  • Зарегистрирован: 26.04.2024
  • Образование: Cпециалитет
  • Юридический статус:Частное лицо
Был на сайте:

Комплекс ремонтно-строительных работ и оборудование нежилых помещений для размещения дополнительного офиса Банка ВТБ ( ПАО) по адресу: Нижегородс

Описание

Рабочим проектом 224-31.25-ОВиК, запректированны системы отопления, вентиляции и кондиционирования.
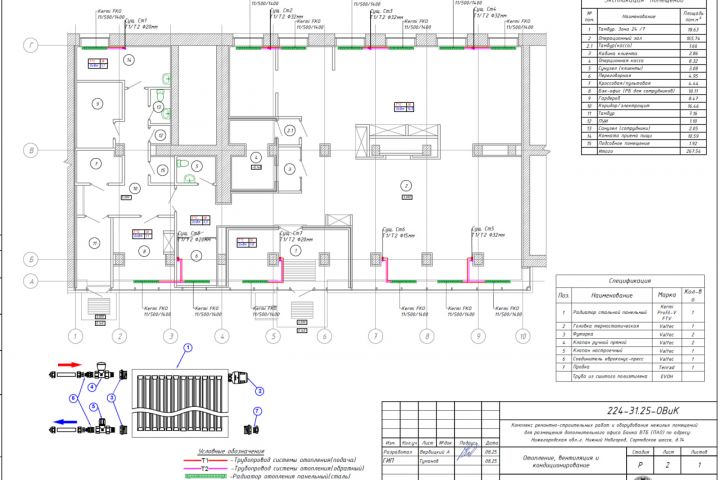
*Система отопления
Проектом выполнена тупиковая,двухтрубная система отопления.
В качестве приборов отопления приняты стальные панельные радиаторы отопления Kermi FKO/ с
индивидуальным клапаном терморегуляции, производства компании Valtec.
Подводка теплоносителя от существующих стояков отопления, выполнена напорной трубой из сшитого
полиэтилена с барьерным слоем производства компании EVOH.
Трубопровод проложен скрыто в стяжке пола и отделке стен в трубчатой теплоизоляции K-flex.
Приборы отопления скрыты декоративными панелями см. проект АР;
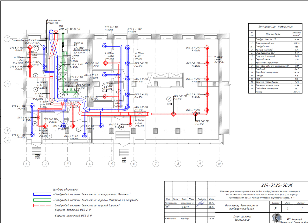
* Система вентиляций
В качестве приточно-вытяжной установки ПВ1 принята сборная установка с рекуперацией компании Zilton
мощностью 2000м³/ч;
Для удаления газов из помещении сан/узлов В1, принят вытяжной канальный вентилятор компании Zilton
200м³, оборудованный воздушным клапаном и шумоглушителем той же компании;
Воздуховоды для подачи и вытяжки воздуха в помещениях принят круглый,гибкий звуко-теплоизолированный
воздуховод производства Китай;
В качестве воздухораспределительные устройства с регулируемым расходом воздуха, который
осуществляется с помощью вращения центрального диска.

Решение

Диффузоры изготовлены из высококачественной стали с последующей порошковой окраской. Цвет окраски —
«кристально-белый» (RAL 9016). Фактура — глянцевая.
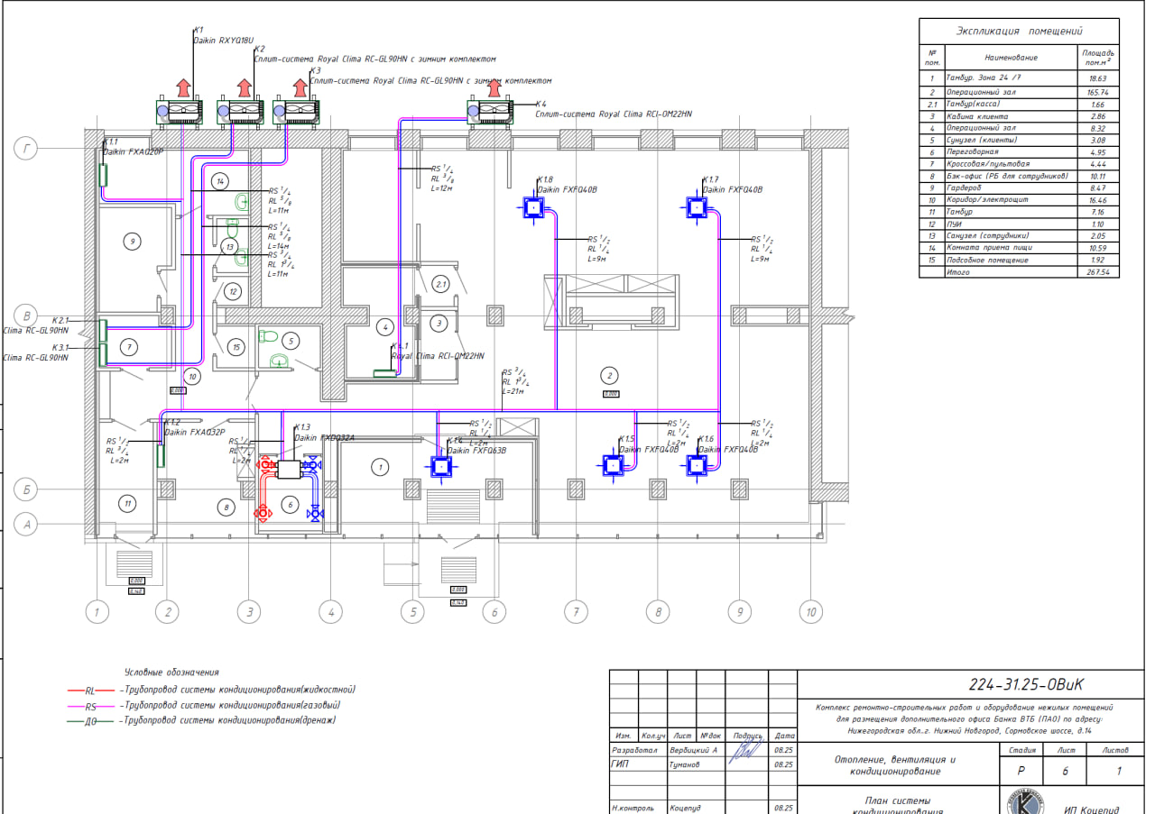
*Кондиционирование
Проектом предусмотрены четыре независимые системы вентиляции:
К1-для помещении банка и зон обслуживания клиентов.
Система укомплектована оборудованием производства компании Daikin и внутренними блоками кастетного
типа;
К2...К3-две независимые системы кондиционирования для помещения серверной, зимний комплект. Данные
сплит-системы оборудованны настенными внутренними блоками, производства компании Royal Clima;
К4-Настенный кондиционер с компрессором инверторного типа в помещение опперационной
кассы,производства компании Royal Clima;
Все системы кондиционирования объединены в общую дренажную систему, для отвода конденсационных
стоков. Конденсат отводится в систему канализации через сифон с обрывам струй, установленном на стояке
хоз-бытовой канализации в сан узле банка.

Презентация проекта

photo_2025-11-13_23-48-57.jpg
photo_2025-11-13_23-49-23.jpg
photo_2025-11-13_23-49-52.jpg
photo_2025-11-13_23-50-24.jpg
photo_2025-11-13_23-50-57.jpg

Оценили проект:

0