Гармоничное пространство-гармоничная жизнь.

Алена Урзикова alenamalurza

Рейтинг: 174
не верифицирован
Всего отзывов: 0
  • Работ в портфолио: 5
  • Типовых услуг: 1
  • Работ на продажу: 0
  • Возраст: 37 лет
  • Стаж работы: 1 год
  • Зарегистрирован: 03.06.2025
  • Образование: Бакалавриат
  • Юридический статус:Частное лицо
Была на сайте:

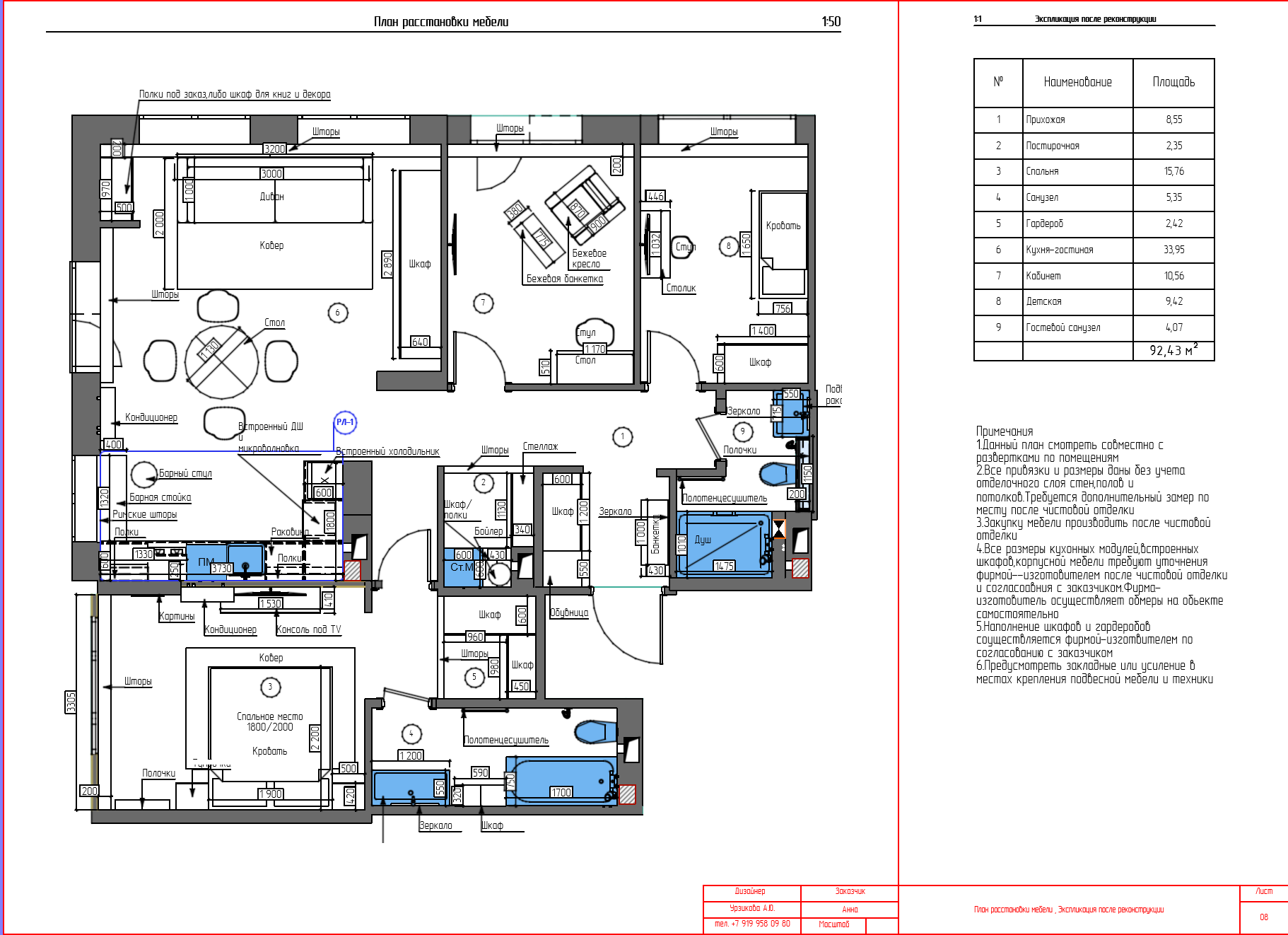
Дизайн-проект черновой квартиры для семьи из троих человек

Описание

Задача была сделать дизайн проект для семьи, вписать в этот дизайн существующую винтажную фамильную мебель, оставить одну комнату относительно свободной, тк через пару лет планируют заводить еще одного ребенка. Так же не хотелось размещать стиральную и сушильную машины ни в один санузел, а разместить его в кладовке... но в кладовке не было выводов воды

Решение

Сначала решили технический момент, сантехник дал добро на вывод коммуникаций для стиральной и сушильной машины в кладовке. Далее определились что вторая комната будет временно кабинетом для мужа, а в будущем детской комнатой для второго ребенка.

Результат

Результат на фото, клиенту понравились все решения, многая мебель будет еще докупаться на блошиных рынках и авито уже самом клиентом. Все коллажи были прогнаны через ИИ для более реальной визуализации. в 3D max НЕ РАБОТАЮ.
Выполнена вся рабочая документация для строителей, включая развертки

Презентация проекта

1 .png
81e64664-8f06-4cec-9ad3-7ee711af31e5.png
c09982cd-f344-4b26-bf71-b3f5218e5eaf.png
Снимок экрана 2025-10-13 195843.png
про.png
авр.png
13.png
d6c3fbe2-45b4-46ff-b7a4-15a0d0c62b23.png
3b6d0ceb-8a2c-4bc7-bbeb-3b17756d08bb.png
12.png

Оценили проект:

0