Гармоничное пространство-гармоничная жизнь.

Алена Урзикова alenamalurza

Рейтинг: 174
не верифицирован
Всего отзывов: 0
  • Работ в портфолио: 5
  • Типовых услуг: 1
  • Работ на продажу: 0
  • Возраст: 37 лет
  • Стаж работы: 1 год
  • Зарегистрирован: 03.06.2025
  • Образование: Бакалавриат
  • Юридический статус:Частное лицо
Была на сайте:

Проект дома

Описание

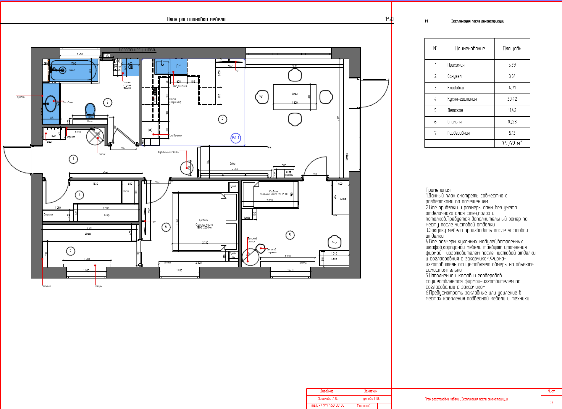
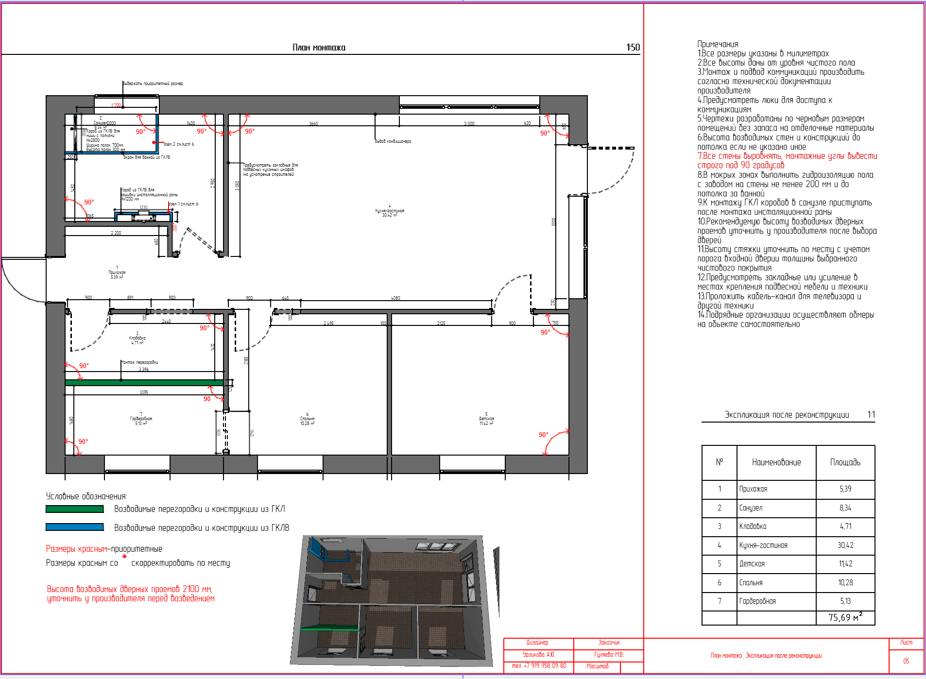
Задача была сделать эскизный проект дома, на семью из двоих взрослых и одного ребенка. Дом не маленький, но больших мест для хранения не было.

Решение

Первую комнату отдали под кладовку со стороны прихожей, а во второй части комнаты разместили гардеробную со входом из спальни.

Результат

Теперь у всех есть по комфортной отдельной комнате, без шкафов, которые сжимают и без того маленькое пространство. Так же кладовка со стороны прихожей, в которой расположится морозильная камера и комфортные полки и шкафы для хранения, а так же гардеробная в родительской спальне. Все счастливы и довольны!

Презентация проекта

1.png
2.png
3 .png
4.png
5.png
6.png
7.png
8.png
9.png
10.png

Оценили проект:

0