Варианты планировок гостиной, 18м
Для полной функциональности этого сайта необходимо включить JavaScript.
Санкт-Петербург
Екатерина Гвоздева
katerina123
Рейтинг: 1 680
не верифицирован
Всего отзывов:
1
0
Нейросаммари
Работ в портфолио:
9
Типовых услуг:
3
Работ на продажу:
0
Зарегистрирован:
20.09.2020
Образование:
Магистратура
Была на сайте:
2026-03-02 в 21:35
inbox
Вконтакте
Предложить работу
Добавить в избранное
Добавить рекомендацию
Пожаловаться
Дизайн пространства
65
1
Варианты планировок гостиной, 18м
Используемые навыки:
ArchiCAD
Дизайн интерьера
Дизайн интерьеров
Чертежи/Схемы
Описание
Решение
Результат
Соавторы
Презентация проекта
Примеры реализации
Описание
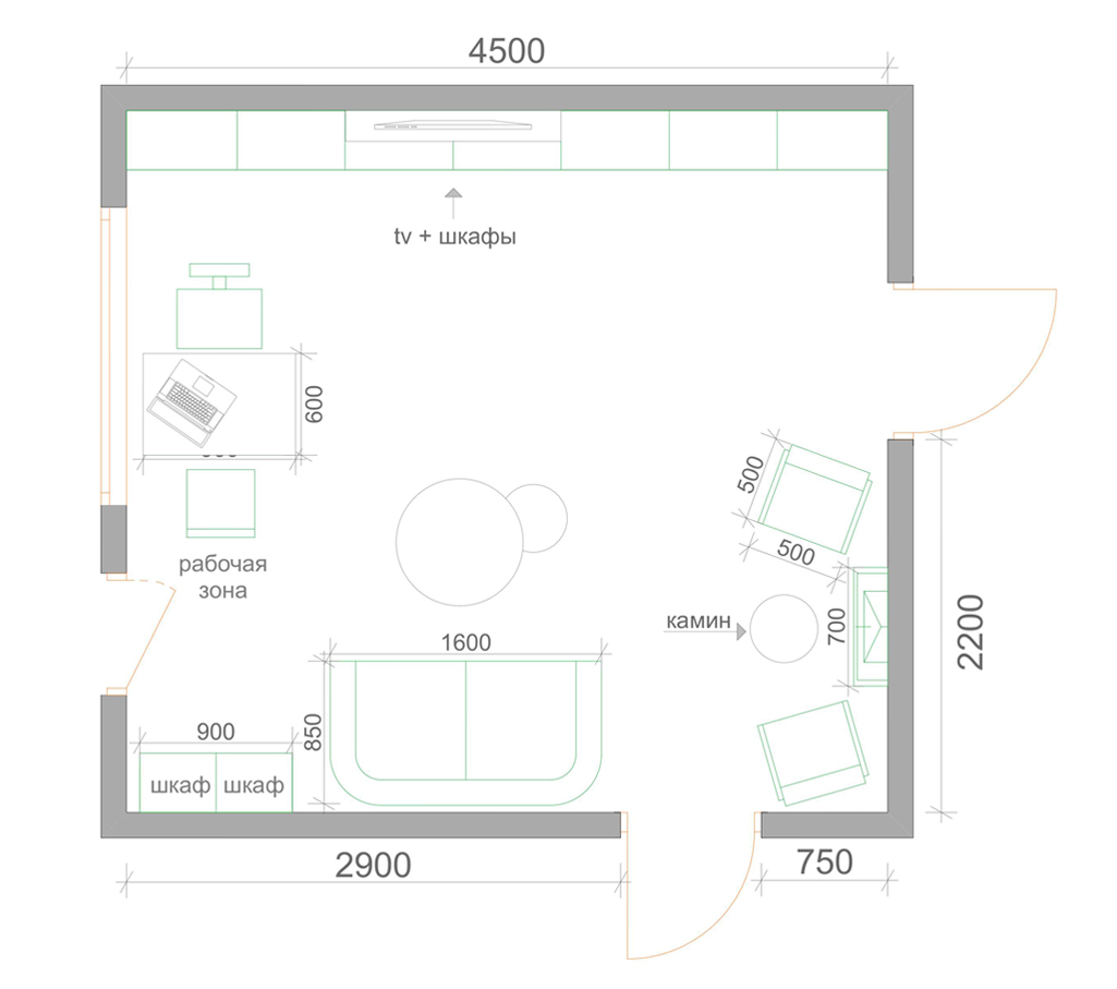
Варианты планировок гостиной 18м. Чертежи
Презентация проекта
Оценили проект:
1
×
Оценили проект
×
Авторизация
Для того чтобы оценивать проекты, вам нужно войти на сайт
Другие проекты
Все проекты
Йога студия Виньяса в Санкт-Петербурге
Визуализации квартиры в Милане
Рекламное видео товара
FREELANCE.RU
Toggle navigation
Нанять фрилансера
Заказчику
Найти по специализации
Найти по услугам
Провести конкурс
Разместить задание
Виртуальный HR
Найти студию
Другое
Найти работу
Фрилансеру
Найти задание
Присоединиться к команде
Участвовать в конкурсе
Предложить услугу
Другое
Возможности
Для заказчика
Для фрилансера
Вход
Разместить задание
▲