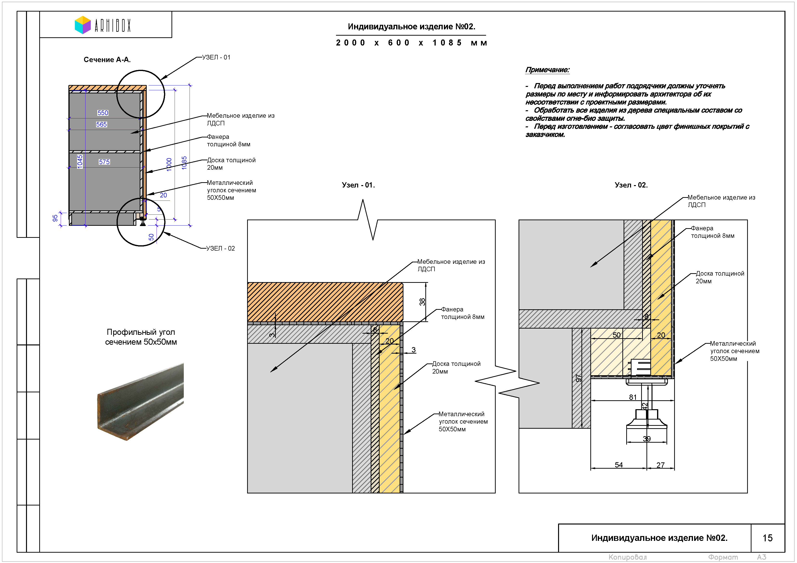
Технический проект цветочного магазина.
Для полной функциональности этого сайта необходимо включить JavaScript.
Москва
Визуальные решения
ARHIBOX Анна
arhibox
Рейтинг: 2 746
Верифицирован через Сбер ID
Всего отзывов:
13
0
Профессионализм:
10
Коммуникация:
10
Выполнено заданий:
19
Нейросаммари
Надежность:
Использовал:
Работал по Безопасной сделке
Работ в портфолио:
88
Типовых услуг:
1
Работ на продажу:
0
Зарегистрирован:
26.09.2021
Образование:
Магистратура
Стоимость услуг (руб):
500
за час
150 000
за месяц
Был на сайте:
2026-03-10 в 17:44
inbox
telegram
www.behance.net/arhibox
Вконтакте
Rutube
Предложить работу
Добавить в избранное
Добавить рекомендацию
Пожаловаться
Графический дизайн
41
0
Технический проект цветочного магазина.
Описание
Решение
Результат
Соавторы
Презентация проекта
Примеры реализации
Описание
Технический проект цветочного магазина.
Презентация проекта
Оценили проект:
0
×
Оценили проект
×
Авторизация
Для того чтобы оценивать проекты, вам нужно войти на сайт
Другие проекты
Все проекты
Технический проект зубной клиники в Москве.
Дизайн кафе
Дизайн офиса с подбором материалов
FREELANCE.RU
Toggle navigation
Нанять фрилансера
Заказчику
Найти по специализации
Найти по услугам
Провести конкурс
Разместить задание
Виртуальный HR
Найти студию
Другое
Найти работу
Фрилансеру
Найти задание
Присоединиться к команде
Участвовать в конкурсе
Предложить услугу
Другое
Возможности
Для заказчика
Для фрилансера
Вход
Разместить задание
▲