Качественно и ответственно выполнить поставленную задачу

Александр Владимиров Vladimirov97

Рейтинг: 63
Верифицирован через Сбер ID
Всего отзывов: 0
  • Работ в портфолио: 3
  • Типовых услуг: 0
  • Работ на продажу: 0
  • Возраст: 29 лет
  • Зарегистрирован: 01.10.2025
Был на сайте:

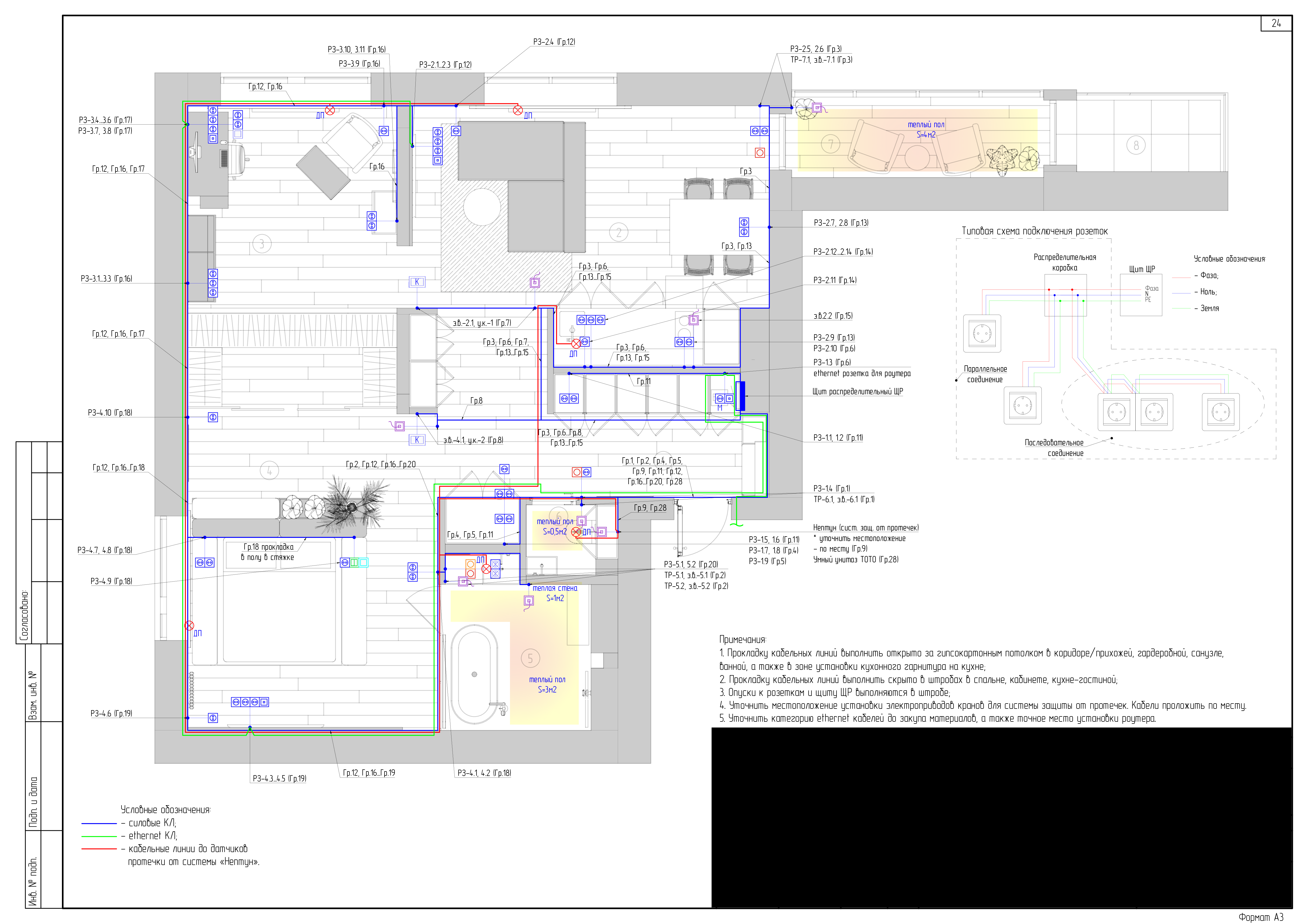
Раздел "Электрооборудование и электроосвещение" для частного лица (квартира)

Описание

Разработка проекта электрики для двухкомнатной квартиры по дизайн проекту.
Объект "Клубный дом 19/05"

Решение

Создание однолинейной схемы щита распределительного.
Расчеты, подбор автоматов, КЛ.
Планы по прокладке кабельных линий силовых и КЛ освещения.
Подсчет материалов.

Результат

Проект согласован и передан в монтаж.

Презентация проекта

П.21.png
П.22.png
П.23.png
П.24.png
П.25.png
П.26.png
П.27.png
П.28.png

Оценили проект:

0