Рейтинг: 133
Верифицирован через Сбер ID
Всего отзывов: 0
  • Работ в портфолио: 4
  • Типовых услуг: 0
  • Работ на продажу: 0
  • Зарегистрирован: 14.10.2025
Был на сайте:

ЖК в г. Москва

Используемые навыки:

Описание

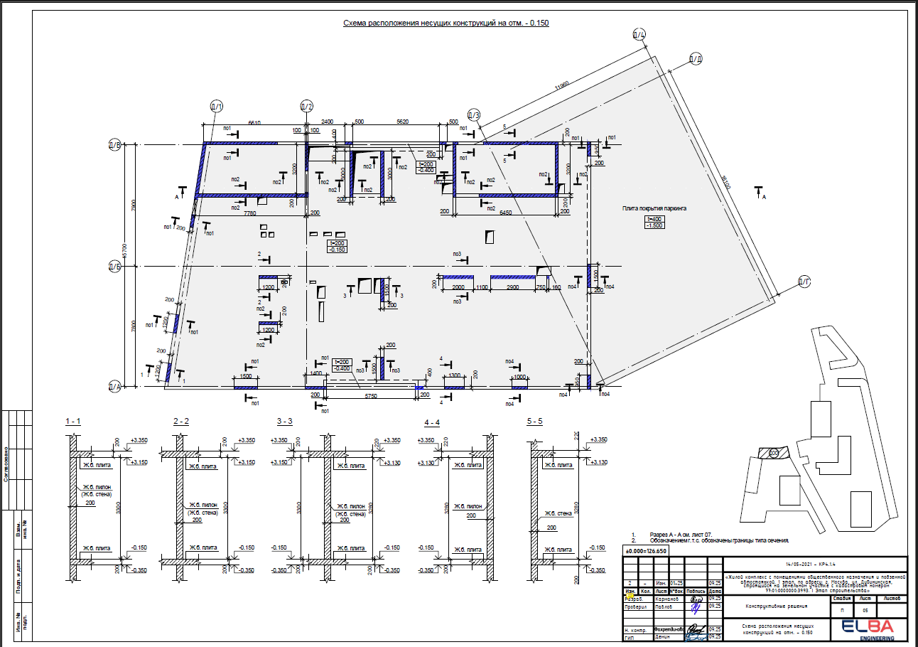
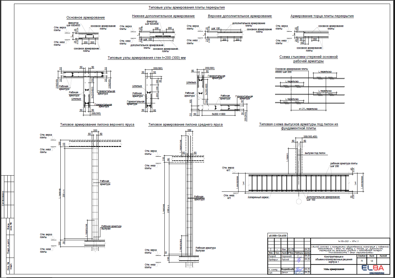
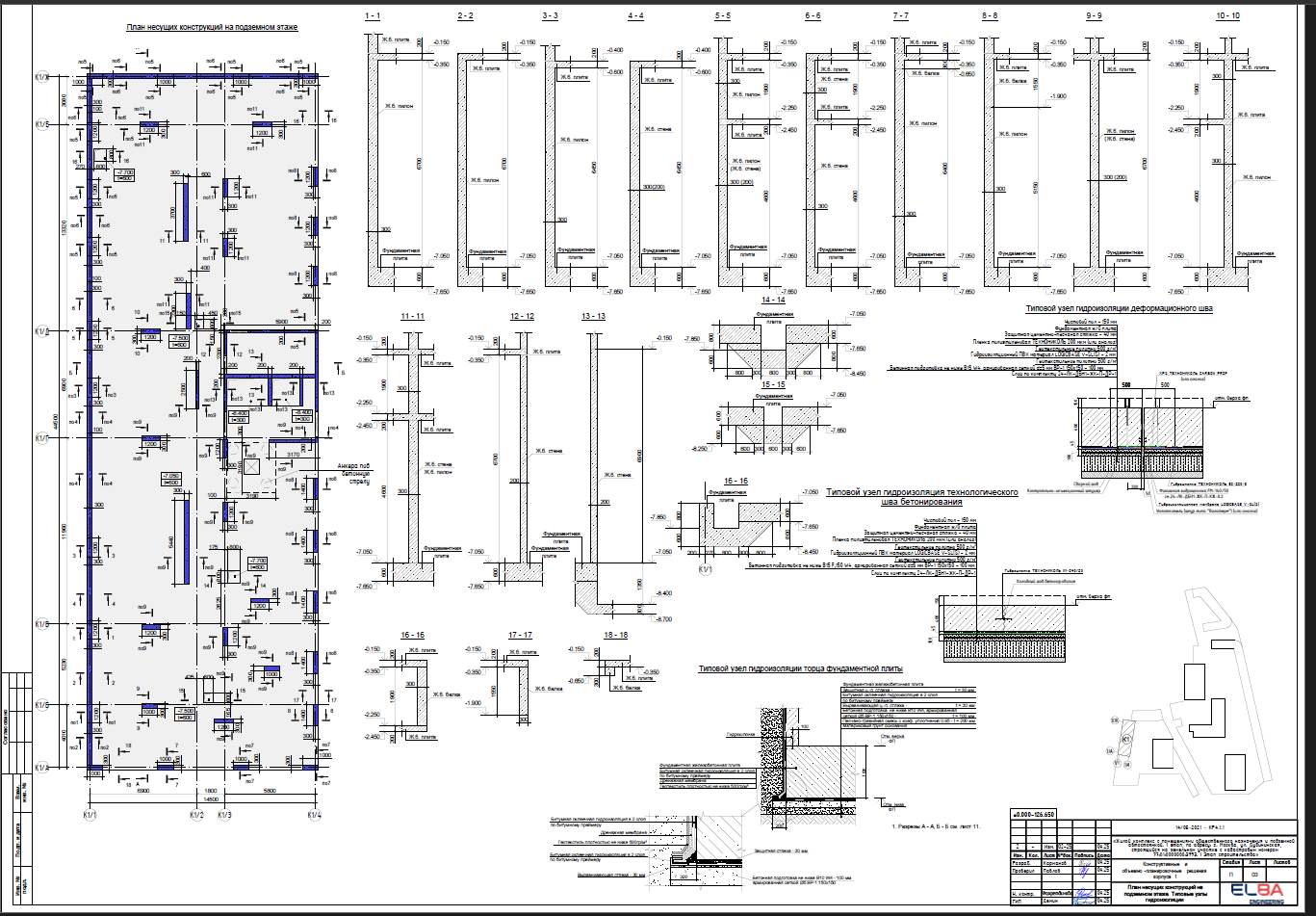
Разработка ПД КР. Разработка чертежей и участие в разработке модели в лире. Так же есть опыт в разработке РД КЖ. В настоящее время работаю в Revit

Презентация проекта

Снимок экрана 2025-10-14 202811.png
Снимок экрана 2025-10-14 202836.png
Снимок экрана 2025-10-14 202925.png
Снимок экрана 2025-10-14 202944.png
Снимок экрана 2025-10-14 203828.png

Оценили проект:

0