невозможное возможное

Вероника Комарницкая NikaShulgin

Рейтинг: 278
не верифицирован
Всего отзывов: 0
  • Работ в портфолио: 6
  • Типовых услуг: 0
  • Работ на продажу: 0
  • Возраст: 37 лет
  • Зарегистрирован: 16.09.2025
  • Образование: Cпециалитет
  • Юридический статус:ИП
Была на сайте:

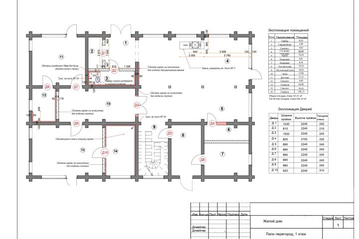
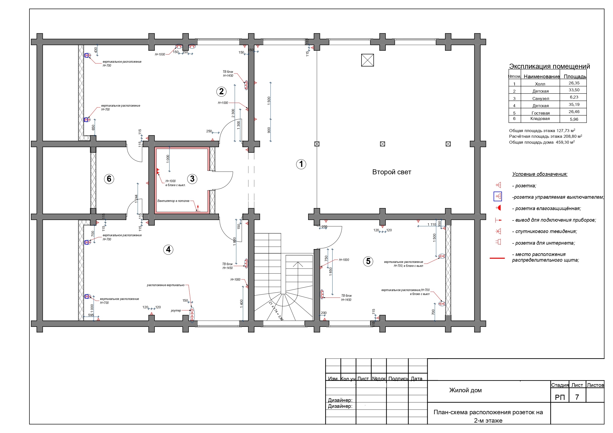
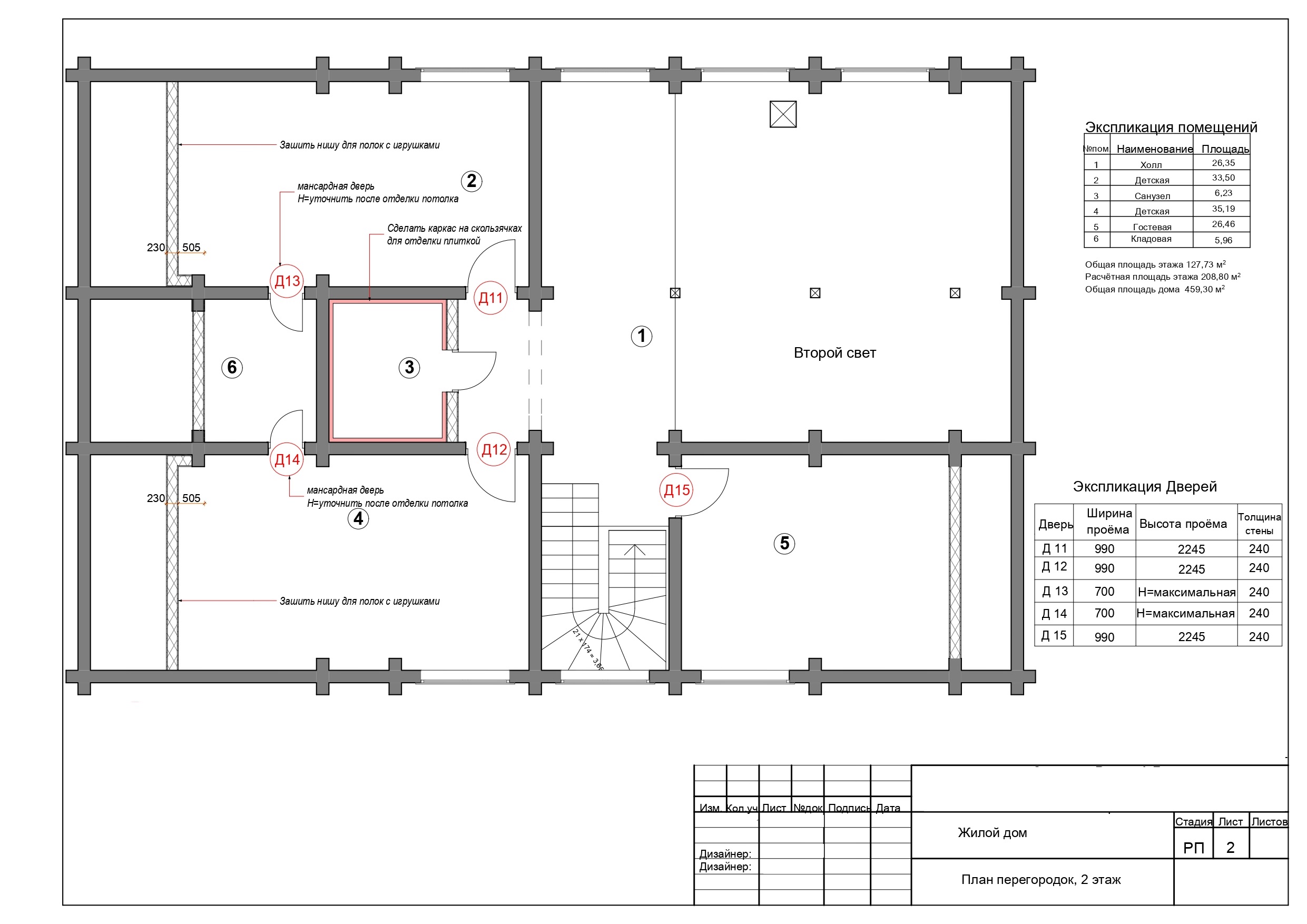
Схематическая визуализация планировок и оборудования

Описание

Создала проект для визуализации планировок здания с расстановкой оборудования . Работа включала:

Отрисовку планировок 2 этажей в упрощенной, наглядной форме;

Схематическое отображение расположения оборудования по этажам;

Подготовку материалов для презентации и внутренних нужд компании.

Результат

Четкие, удобные для восприятия схемы планировок и оборудования;

Материалы готовы к использованию для презентаций и внутренних инструкций

Презентация проекта

Дизайн проект_ДОМ-7.jpg
Дизайн проект_ДОМ-2.jpg

Оценили проект:

0