Рейтинг: 74
не верифицирован
Всего отзывов: 0
  • Работ в портфолио: 24
  • Типовых услуг: 0
  • Работ на продажу: 0
  • Образование: Среднее профессиональное
  • Стаж работы: 3 года
  • Тип занятости: Подработка
  • Юридический статус:Юридическое лицо
Была на сайте:

Разработка дизайн-проекта интерьера детской комнаты для мальчика в 3-к. квартире

Описание

Клиентом была поставлена следующая задача: Создать приятный и современный интерьер, комнату для мальчика с определенными размерами кровати, стола. Обязательным критерием было предусмотреть наличие шведской стенки с брусьями, а так же рабочего стола и шкафа для одежды. Постараться в маленьком пространстве создать максимально функциональную комнату с максимальным количеством мест для хранения.

Решение

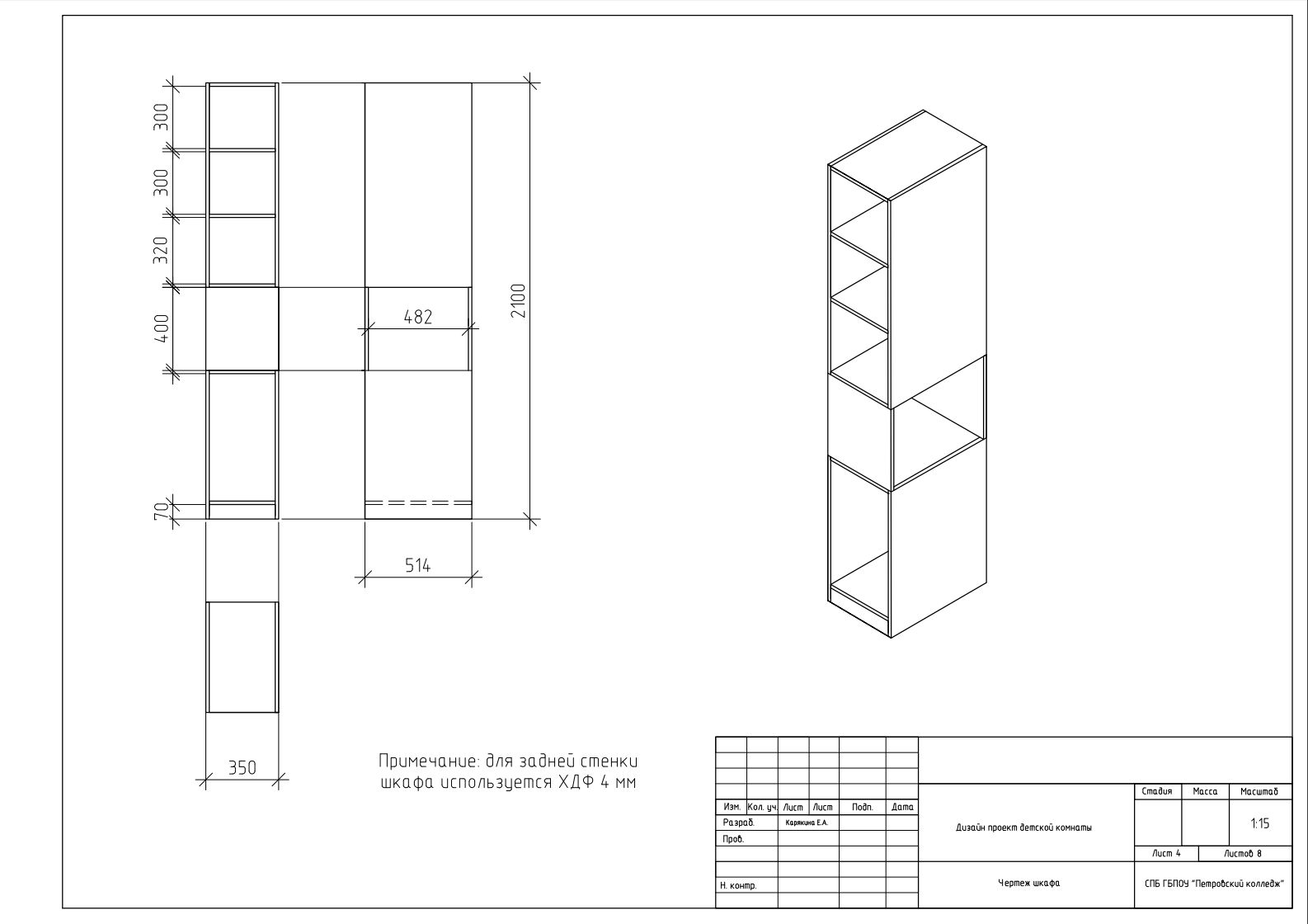
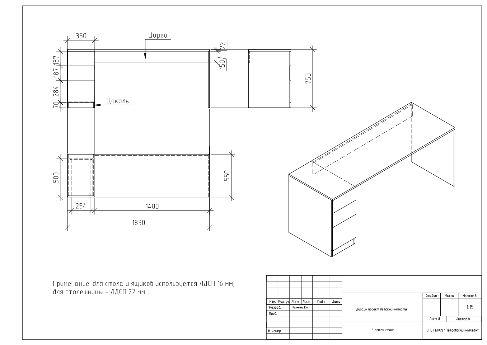
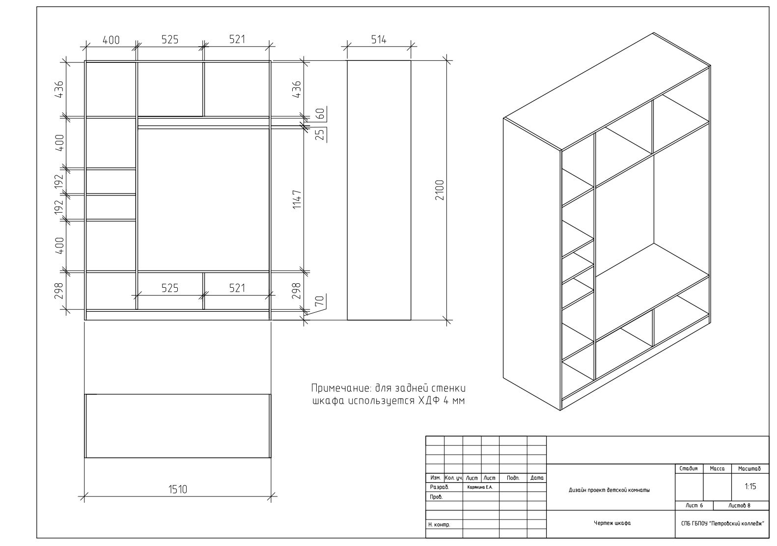
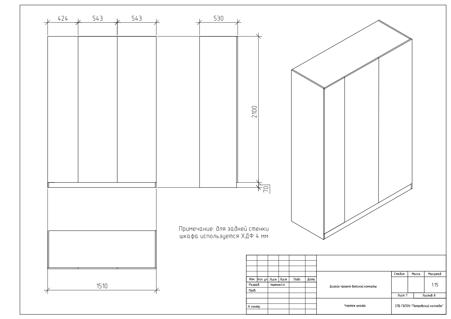
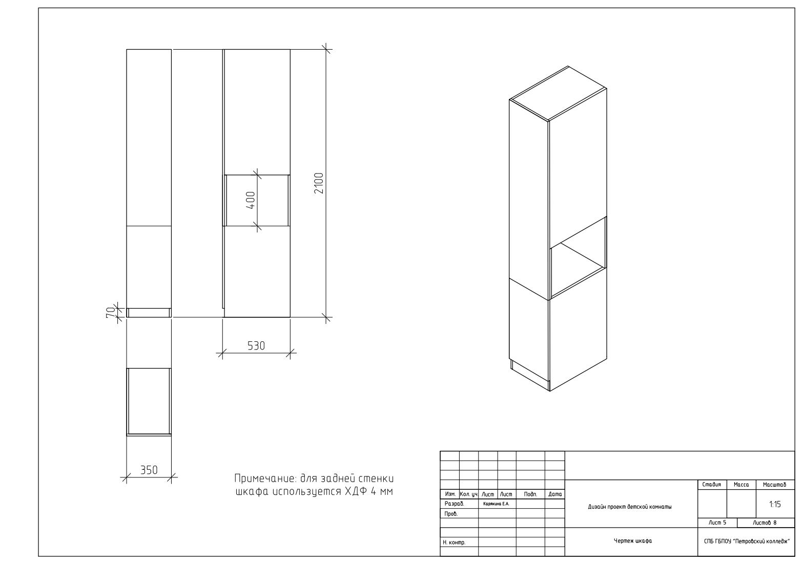
В рамках проекта было создано планировочное решение и визуализации комнаты. С заказчиком обсуждались различные референсы и цветовая гамма. Так же были разработаны некоторые объекты мебели - шкаф и стол с выдвижными ящиками. Для них выполнены необходимые чертежи.

Результат

В проекте предусмотрены все желания клиента. Учтены необходимые предметы мебели, тех размеров, которые предполагались. Каждая деталь тщательно продумана, вплоть до шкафа рядом с кроватью с углублением для хранения небольших предметов (телефон/стакан воды). Создано уютное и светное помещение в приятной цветовой гамме. В комнатке есть все для позитивного развития и обучения ребенка.

Презентация проекта

готовый1.png
2025-09-19_16-30-58.png
2025-09-19_16-31-13.png
2025-09-19_16-31-27.png
2025-09-19_16-43-23.png
2025-09-19_16-43-43.png
2025-09-19_16-43-57.png
2025-09-19_16-44-11.png
2025-09-19_16-44-22.png
2025-09-19_16-44-34.png

Оценили проект:

0