Рейтинг: 74
не верифицирован
Всего отзывов: 0
  • Работ в портфолио: 24
  • Типовых услуг: 0
  • Работ на продажу: 0
  • Образование: Среднее профессиональное
  • Стаж работы: 3 года
  • Тип занятости: Подработка
  • Юридический статус:Юридическое лицо
Была на сайте:

ДИПЛОМНЫЙ ПРОЕКТ Разработка дизайн-проекта интерьера зала ресторана "Кармин"

Описание

В последние годы наблюдается значительный рост интереса к уникальным концепциям общественных пространств, где дизайн интерьера становится не просто фоном, а ключевым элементом, формирующим атмосферу и впечатления гостей. Рестораны, кафе и бары всё чаще превращаются в места, где посетители не только наслаждаются кулинарными изысками, но и погружаются в особую эстетическую среду, отражающую историю, культуру и философию заведения.

Цель и задачи: Целью моего дипломного проекта стала разработка дизайн-проекта интерьера зала ресторана «Кармин».
Задачи:
1) Проведение предпроектного анализа;
2) Разработка технического задания для дизайн-проекта;
3) Разработка концепции дизайн-проекта;
4) Выполнение функционального зонирования и объемно-планировочного решения;
5) Разработка стилистического и колористического решения интерьера;
6) Выбор отделочных материалов, мебели и осветительного оборудования;
7) Разработка предмета мебели для интерьера

Решение

Ресторан «Кармин» представляет собой проект, вдохновлённый историческим стилем конструктивизм. Проектируемое пространство находится в историческом месте города – на границе Кировского и Адмиралтейского района Санкт-Петербурга. Место, где сосредоточено множество зданий в стиле конструктивизм, становится идеальной площадкой для создания интерьера, который подчеркнёт связь с эпохой авангарда и индустриальной эстетикой. Дизайн-проект интерьера ресторана «Кармин» разработан под влиянием эстетики русского авангарда, с акцентом на конструктивизм 1920–1930-х годов. Выбор стиля обусловлен расположением помещения для разработки дизайн-проекта на границе Кировского и Адмиралтейского районов Санкт-Петербурга, где сохранились знаковые образцы конструктивистской архитектуры, такие как, например ДК им. Горького, здание Кировского универмага и жилые комплексы эпохи раннего советского модернизма. Это историко-культурное окружение стало ключевым фактором в формировании концепции, направленной на визуальный диалог с наследием района.

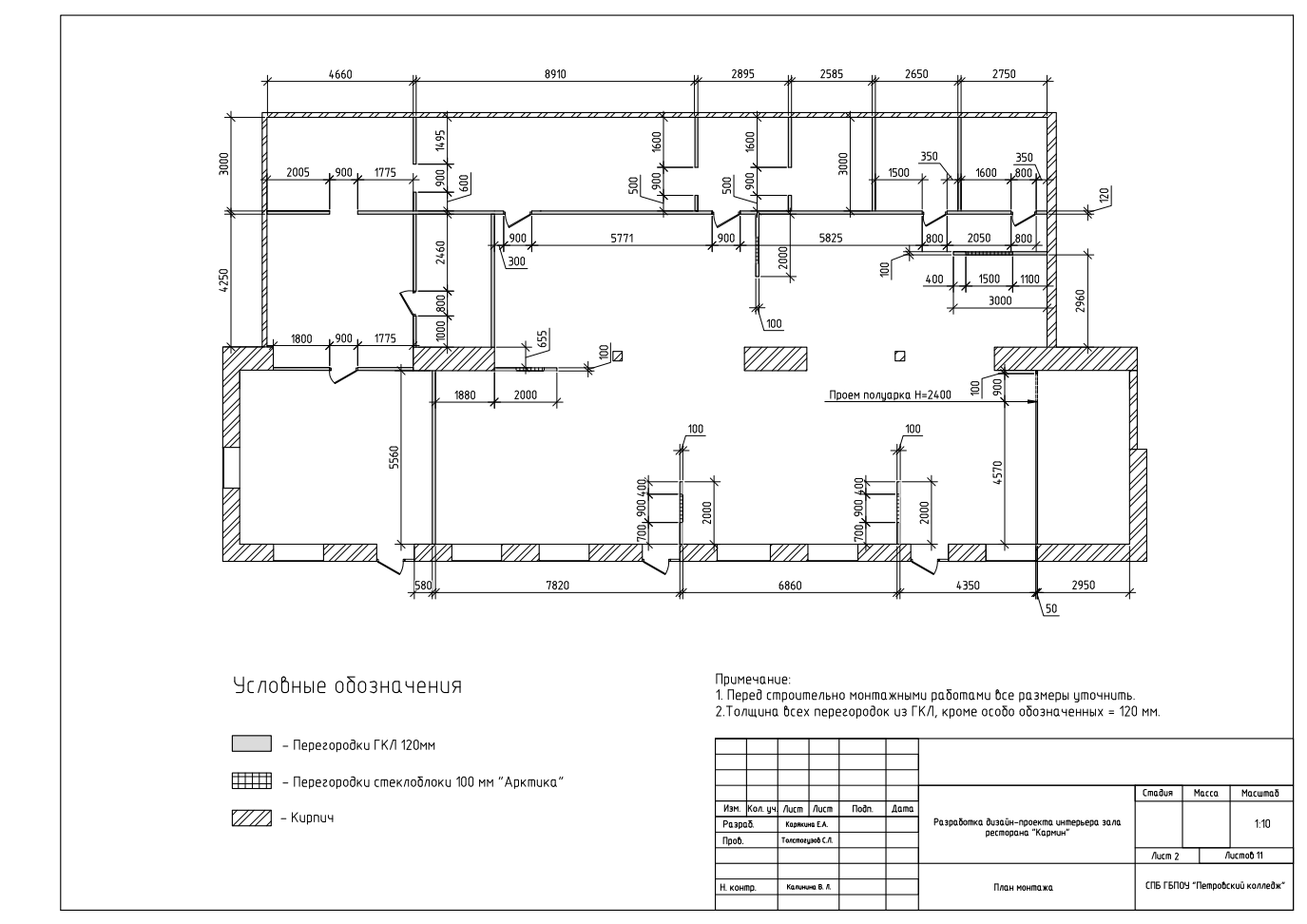
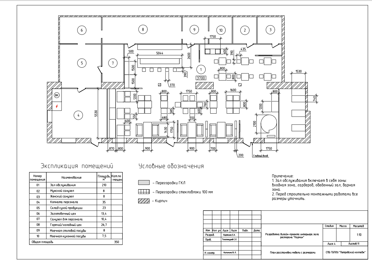
Помещение разделено на следующие функциональные зоны: зал обслуживания; мужской и женский санузлы для посетителей; комната персонала; склад сухой продукции; заготовочный цех; санузел для персонала; горячий и холодный цех; моечная столовой посуды; моечная кухонной посуды.

Результат

ПРОЕКТ ПОБЕДИТЕЛЬ В МЕЖДУНАРОДНОМ КОНКУРСЕ АРХИСТАРТ 2025. Лауреат 2 степени.
В результате работы над проектом бала выполнена поставленная цель и задачи. Каждая деталь была тщательно продумана и выполнена с учётом необходимых норм и требований современного дизайна. Ресторан «Кармин» становится не просто местом для питания, а культурным объектом, где гости погружаются в атмосферу эпохи конструктивизма, переосмысленную через призму современного дизайна.

Презентация проекта

КарякинаЕА_визуализация1.png
КарякинаЕА_визуализация2.png
КарякинаЕА_визуализация3.png
КарякинаЕА_визуализация4.png
КарякинаЕА_визуализация5.png
КарякинаЕА_визуализация6.png
2025-09-19_15-44-51.png
2025-09-19_15-42-55.png
2025-09-19_15-43-20.png
2025-09-19_15-54-04.png

Оценили проект:

0