Рейтинг: 74
не верифицирован
Всего отзывов: 0
  • Работ в портфолио: 24
  • Типовых услуг: 0
  • Работ на продажу: 0
  • Образование: Среднее профессиональное
  • Стаж работы: 3 года
  • Тип занятости: Подработка
  • Юридический статус:Юридическое лицо
Была на сайте:

РАЗРАБОТКА ПРОЕКТА МЕБЕЛИ ДЛЯ ИНТЕРЬЕРА ЗАЛА РЕСТОРАНА (Дипломный проект часть 2)

Описание

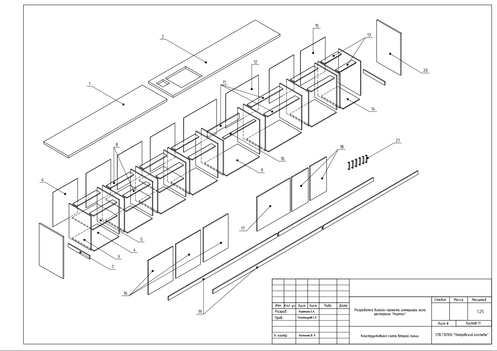
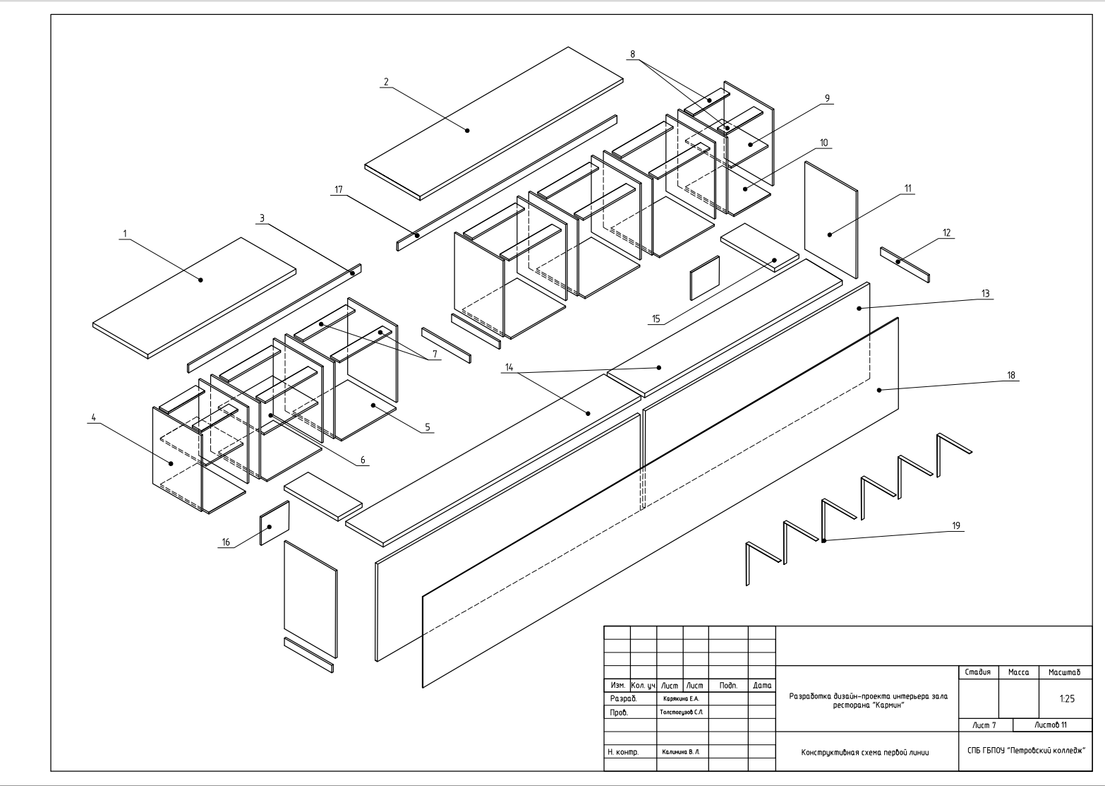
Этот проект является продолжением и дополнением в Дипломному проекту "Разработка дизайн-проекта интерьера зала ресторана "Кармин"" (этот дизайн-проект так же выложен в мой профиль, советую заглянуть). Для разработки данного проекта предмета мебели мне понадобились навыки работы в программе NanoCad (AutoCad) и знания современных тенденций в сфере дизайна, а так же эргономики, чтобы барная стойка имела не только эстетически привлекательный вид, но и была функциональна и удобна как для посетителей, так и для персонала. Так же потребовалось изучить СанПины и необходимые нормативные документы для заведений общественного питания.

Решение

Основным материалом для изготовление барной стойки является ЛДСП EGGER толщиной 16 мм и 22 мм.
В качестве дополнительного материала перфорированный алюминиевый лист.
Габаритные размеры барной стойки: 5044х2222х1200 мм

Результат

Барная стойка состоит из двух линий, есть как открытые так и закрытые системы хранения. Основным материалом для её изготовления стал ЛДСП толщиной 16 мм и 22 мм. Габаритные размеры барной стойки, а так же выполненные чертежи и визуализации Вы можете видеть на слайдах.

Презентация проекта

2025-09-19_16-13-27.png
2025-09-19_16-08-04.png
2025-09-19_16-08-19.png
2025-09-19_16-08-53.png
2025-09-19_16-09-05.png
КарякинаЕА_визуализация7.png

Оценили проект:

0