Рейтинг: 62
не верифицирован
Всего отзывов: 0
  • Работ в портфолио: 2
  • Типовых услуг: 0
  • Работ на продажу: 0
  • Возраст: 41 год
  • Зарегистрирован: 17.08.2025
Был на сайте:

Описание

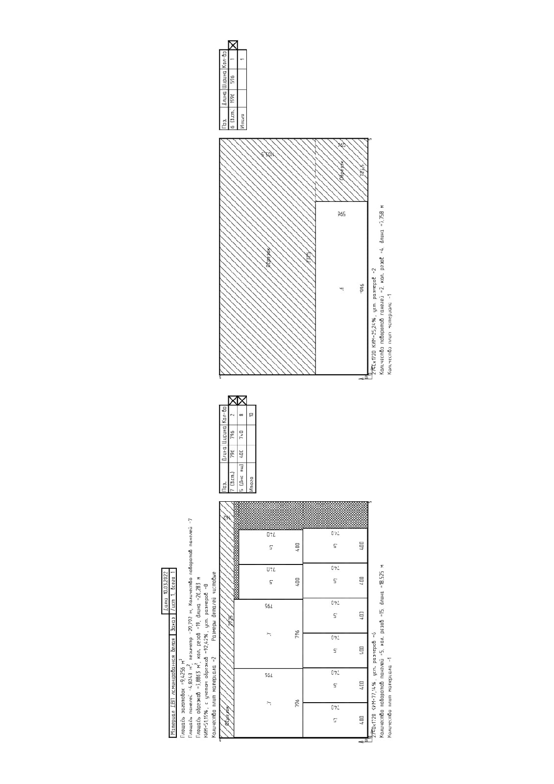
Задача была сделать визуал, а затем раскрой и подсчет материала фурнитуры для частного мебельщика,

Решение

Визуал и раскрой был сделан в программе Базис.

Результат

Клиент работой доволен. Мастер обращается с другими заказами.

Презентация проекта

YNKz9wDYOgXK3wFdfhP7hsN8wMEWsljmHSvrfH_Eb53tc7ie0-VgEydmVa3htX_6
5KOKeoqysTWEp3Jgya2mLB-BVILfOJF11nwG7IlPxm1dR166Pi_G5L_9zRtHSV0k
lOcq3DGZOOo5u9cEg07-CF3wS8gQz1c8iNL8ZBmg9uPcVjmnTJeF9K1V_xapoLkp
avSmkdv7TJh-yT77nMKzGlFCEUdwYh9SOpJWaQ0A3D3oszG4SG9qyAu9OPFwv6gW

Оценили проект:

0