Рейтинг: 62
не верифицирован
Всего отзывов: 0
  • Работ в портфолио: 2
  • Типовых услуг: 0
  • Работ на продажу: 0
  • Возраст: 41 год
  • Зарегистрирован: 17.08.2025
Был на сайте:

Описание

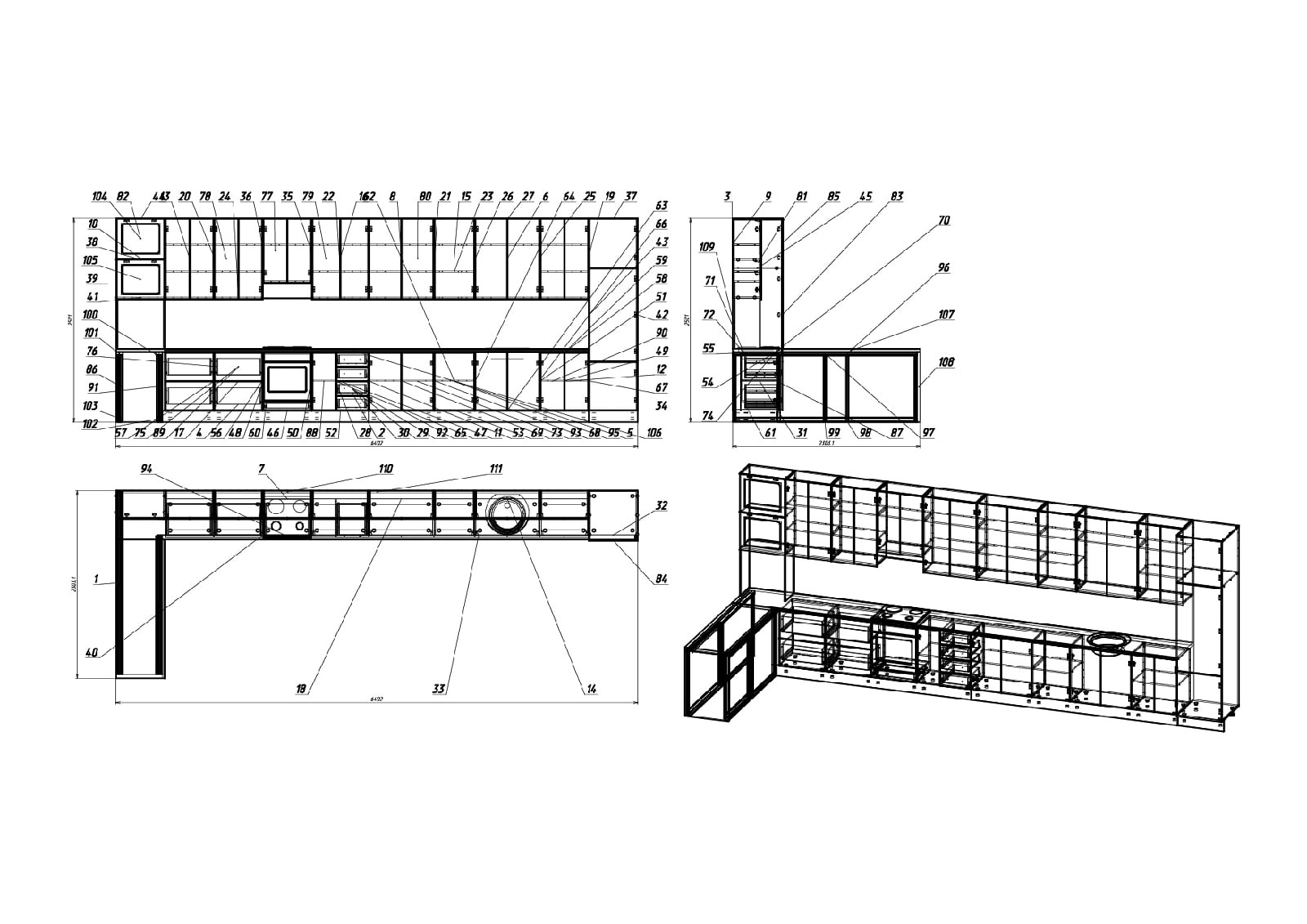
Задача была сделать визуал, а затем раскрой и подсчет материала фурнитуры для частного мебельщика, кухни размером 6400х2300х2500мм.

Решение

Визуал и раскрой был сделан в программе Базис.

Результат

Клиент кухней доволен. Мастер обращается с другими заказами.

Презентация проекта

IMG_20220427_153108.jpg
obZ7C1qK6iihztbrQ-0xAzIgQB3fbLlivoPagtTcRh3xZRuCJMg00ucVn7x3vq-N
eIFIYmQ7HjvP1CwD32EtnXiqIfjBsGNRDmlfzOp20JGUgk915hWabt30XxcLe6z3
-UAXk2CIyAnZkImMIQI-ZXVgDfNFVz6_-u6r2XcXh9DZrYv2Jx_SUVGFNeZP9mQb
O0TGd_i1AxGbYghOPwRrSwpuJTEj94CqUSy9aie03xzr71h15Hut2bQ6RcwUnErn

Оценили проект:

0