Top 10
Рейтинг: 4 175
Паспорт верифицирован
Всего отзывов: 7 0
Профессионализм: 10 Коммуникация: 10
Выполнил заданий: 6
  • Работ в портфолио: 25
  • Типовых услуг: 4
  • Работ на продажу: 0
  • Стаж работы: 3 года
  • Зарегистрирован: 24.07.2024
  • Образование: Cпециалитет
  • Юридический статус:Частное лицо
Был на сайте:

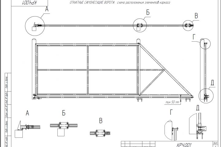
Разработка проектной документации на изготовление самотканых ворот

Описание

1. 3д сборочная модель
2. Сборочные чертежи, ведомость и спецификации
3. Визуализация

Презентация проекта

Снимок экрана 2025-08-05 213644.png
Снимок экрана 2025-08-05 213502.png
Комплект_рабочих_чертежей_для_самостоятельного_изготовления_и_мо
Комплект_рабочих_чертежей_для_самостоятельного_изготовления_и_мо
Комплект_рабочих_чертежей_для_самостоятельного_изготовления_и_мо

Оценили проект:

0