Рейтинг: 53
не верифицирован
Всего отзывов: 0
  • Работ в портфолио: 8
  • Типовых услуг: 0
  • Работ на продажу: 1
  • Образование: Бакалавриат
  • Юридический статус:Частное лицо
Был на сайте:

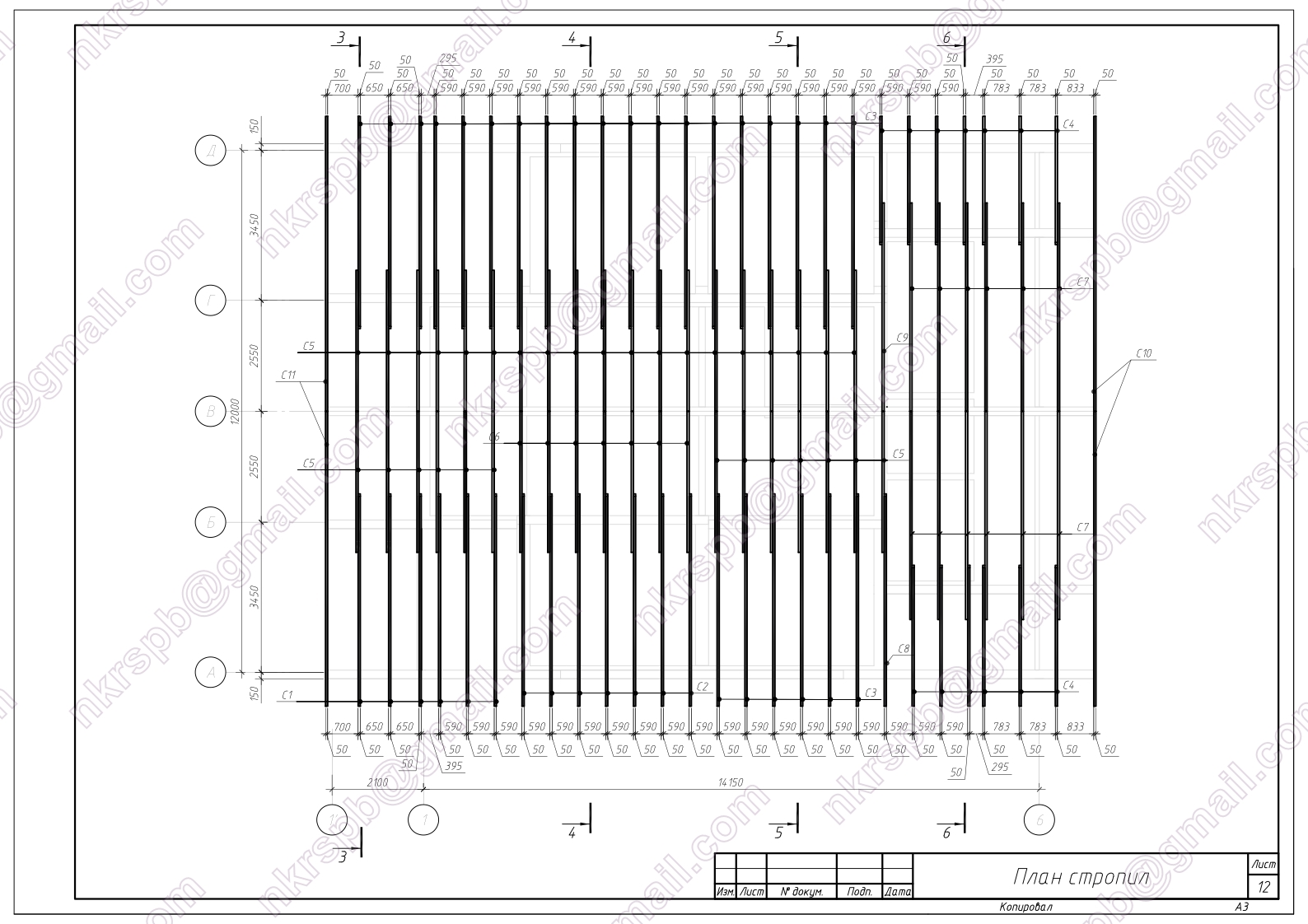
Проект каркасного дома (фрагменты)

Описание

Выполнить проект каркасного дома в соответствии с техническим заданием

Презентация проекта

23.jpg
24.jpg
25.jpg
21.jpg
3.jpg
19.jpg
14.jpg
16.jpg

Оценили проект:

0