Рейтинг: 53
не верифицирован
Всего отзывов: 0
  • Работ в портфолио: 8
  • Типовых услуг: 0
  • Работ на продажу: 1
  • Зарегистрирован: 02.07.2025
  • Образование: Бакалавриат
  • Юридический статус:Частное лицо
Был на сайте:

Каркасный дом. Раздел АС (фрагменты)

Описание

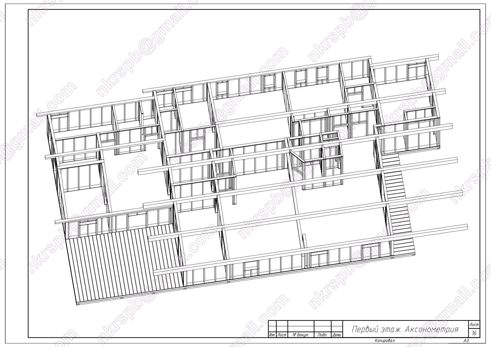
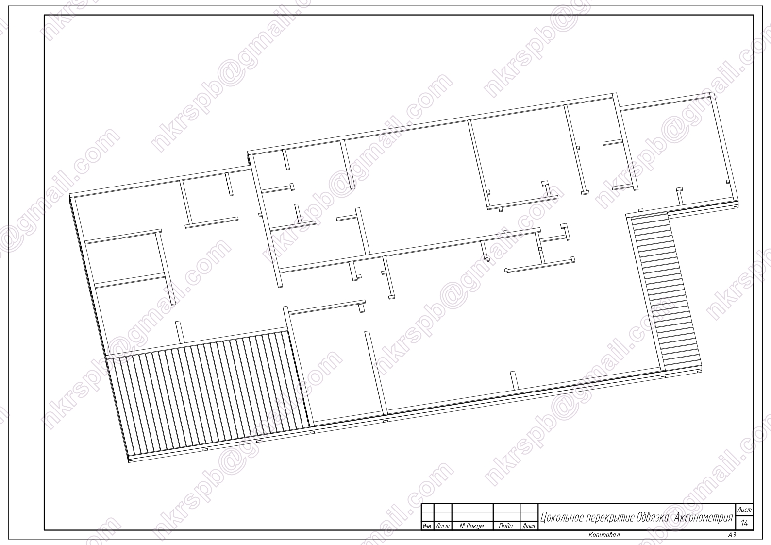
Выполнен конструктивный раздел каркасного дома, в соответствии с техническим заданием заказчика.

Презентация проекта

10.jpg
12.jpg
13.jpg
11.jpg
4.jpg
6.jpg

Оценили проект:

0