Каждый дизайн - это шедевр !

Наталья Бастан nataly43

Рейтинг: 1 215
не верифицирован
Всего отзывов: 0
  • Работ в портфолио: 5
  • Типовых услуг: 4
  • Работ на продажу: 0
  • Возраст: 44 года
  • Стаж работы: 1 год
  • Зарегистрирован: 20.06.2025
  • Образование: Среднее профессиональное
  • Юридический статус:Самозанятый
Была на сайте:

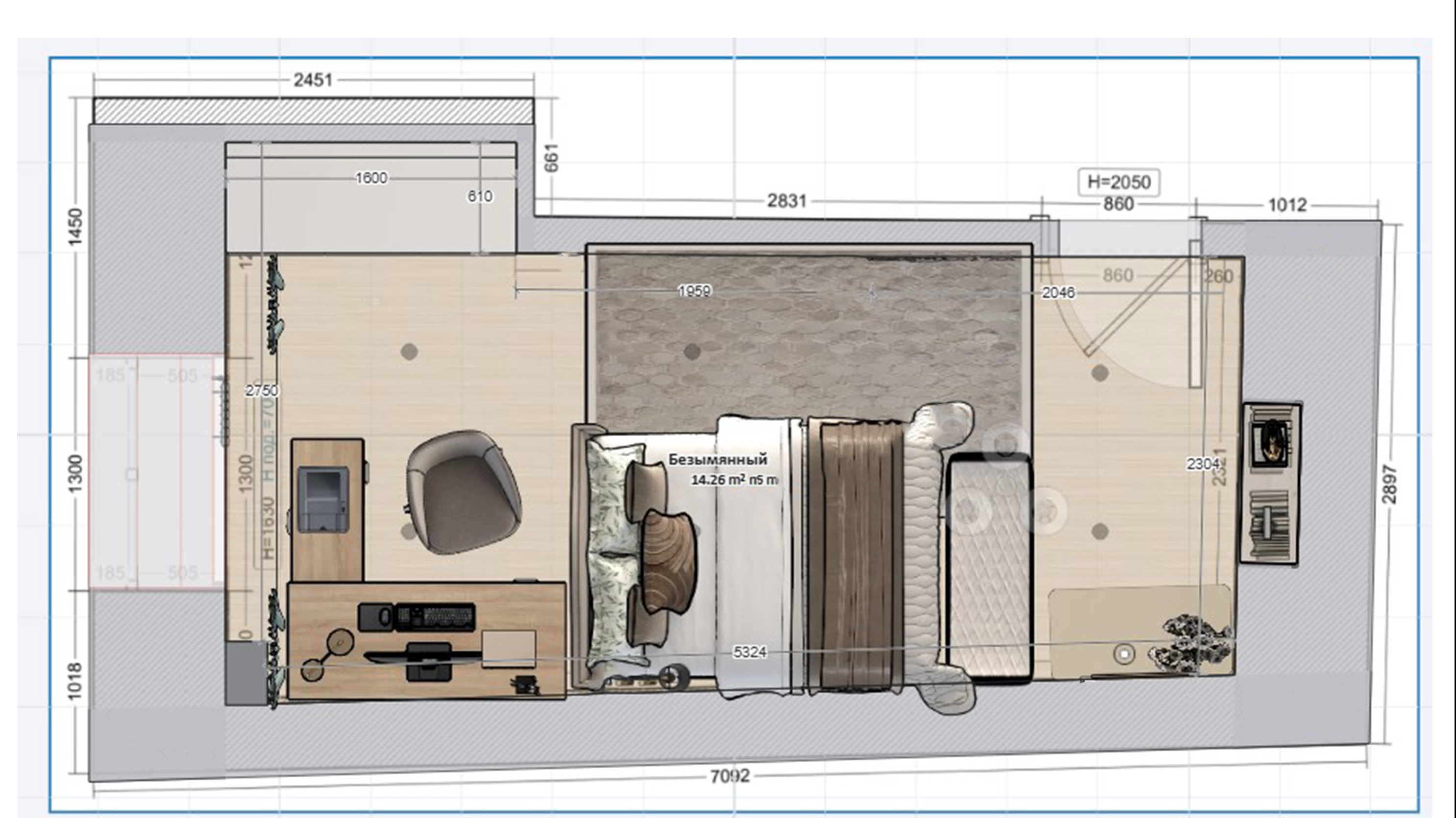
Спальня в классическом стиле

Описание

Я делала этот проект для своей спальни. Задача была вписать ретро предметы интерьера - зеркало и люстру. Хотелось сочетать современный стиль и классический, сделать уютный и мягкий интерьер. сложность была в длинной форме комнаты, кровать невозможно было поставить поперек, было выбрано решение поставить ее изголовьем к окну, чтобы утренний свет не светил в лицо и было видно входящих в комнату. Требовалось так же разместить просторное рабочее место и шкаф для книг и статуэток.

Презентация проекта

наша комната_Безымянное пространство-256.jpeg
наша комната_наша комната-1.jpeg
наша комната_Безымянное пространство-233.jpeg
наша комната_-237.jpeg
наша комната_-250.jpeg
наша комната_Безымянное пространство-238.jpeg
Снимок экрана 2025-04-18 171616.jpg

Оценили проект:

0