Рейтинг: 1 504
не верифицирован
Всего отзывов: 1 0
Профессионализм: 10 Коммуникация: 10
Выполнил заданий: 4
  • Надежность: Использовал: Работал по Безопасной сделке
  • Работ в портфолио: 28
  • Типовых услуг: 1
  • Работ на продажу: 0
  • Стаж работы: 9 лет
  • Зарегистрирован: 24.01.2023
  • Образование: Магистратура
Был на сайте:

Проект индивидуального жилого дома в Рязанской области

Описание

Архитектурные решения, представленные в альбоме, являются Эскизным проектом. Возведение индивидуальных жилых домов возможно при доработке стадией Рабочий проект,
включающей необходимые разделы по конструктивным и инженерным решениям.
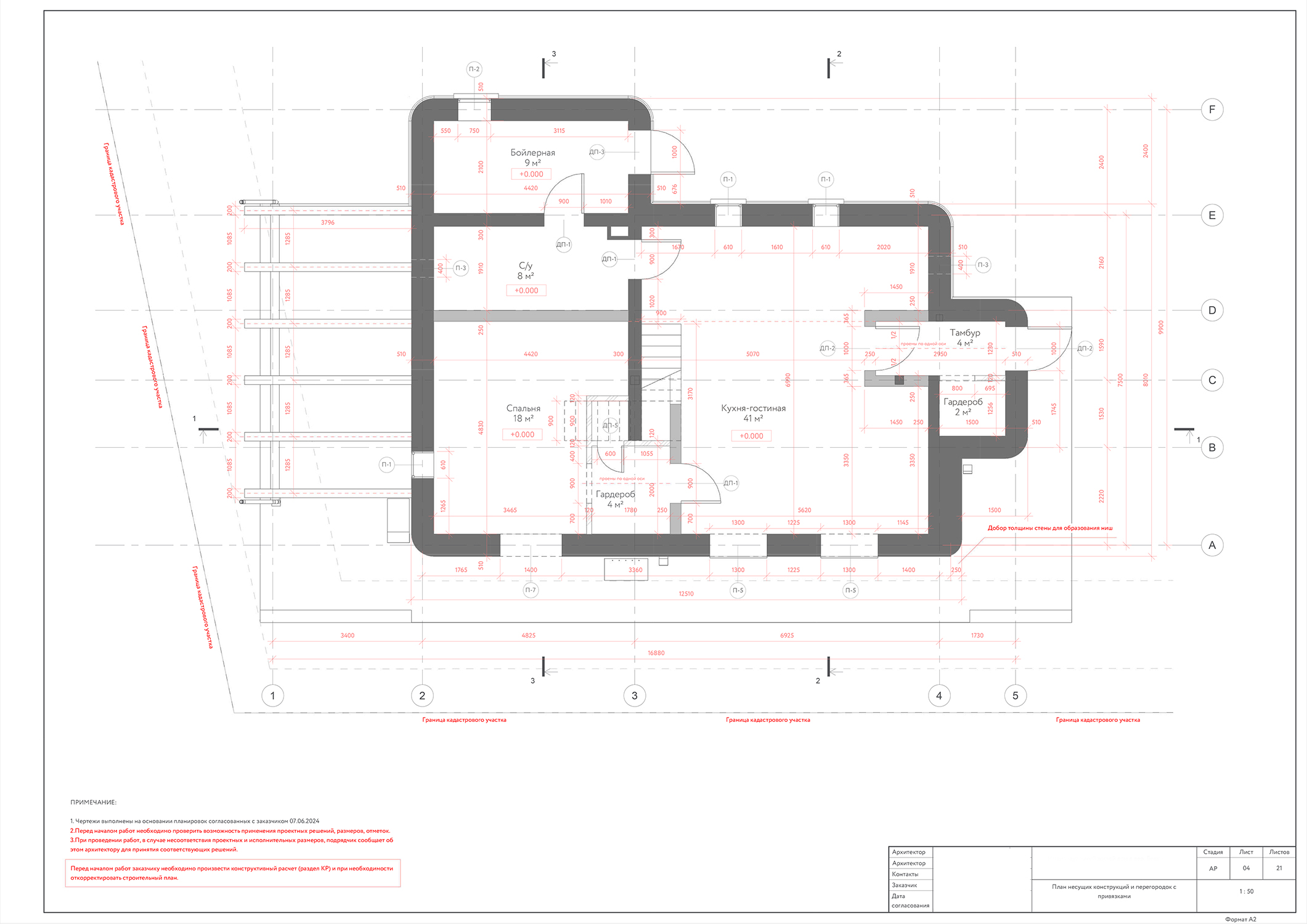
За относительную отметку 0,000 принята отметка чистого пола первого этажа. Несущий остов здания - стеновая конструктивная система из стеновых газобетонных блоков толщиной 510 мм,
работающая совместно с железо-бетонным перекрытием. Конструкция кровли - вальмовая, стропильная из деревянных балок. Высота первого этажа большого индивидуального дома - 3, 300
м. Высота до конька кровли - 9,050 м. Общая устойчивость здания обеспечивается: совместной работой стен, объединённых монолитным железобетонным диском междуэтажного
перекрытия.

Презентация проекта

02.jpg
03.jpg
04.jpg
07.jpg
08.jpg
09.jpg
10.jpg
12.jpg
15.jpg
19.jpg

Оценили проект:

0