Рейтинг: 66
не верифицирован
Всего отзывов: 0
  • Работ в портфолио: 6
  • Типовых услуг: 2
  • Работ на продажу: 0
  • Образование: Магистратура
  • Стаж работы: 6 лет
  • Юридический статус:Юридическое лицо
Был на сайте:

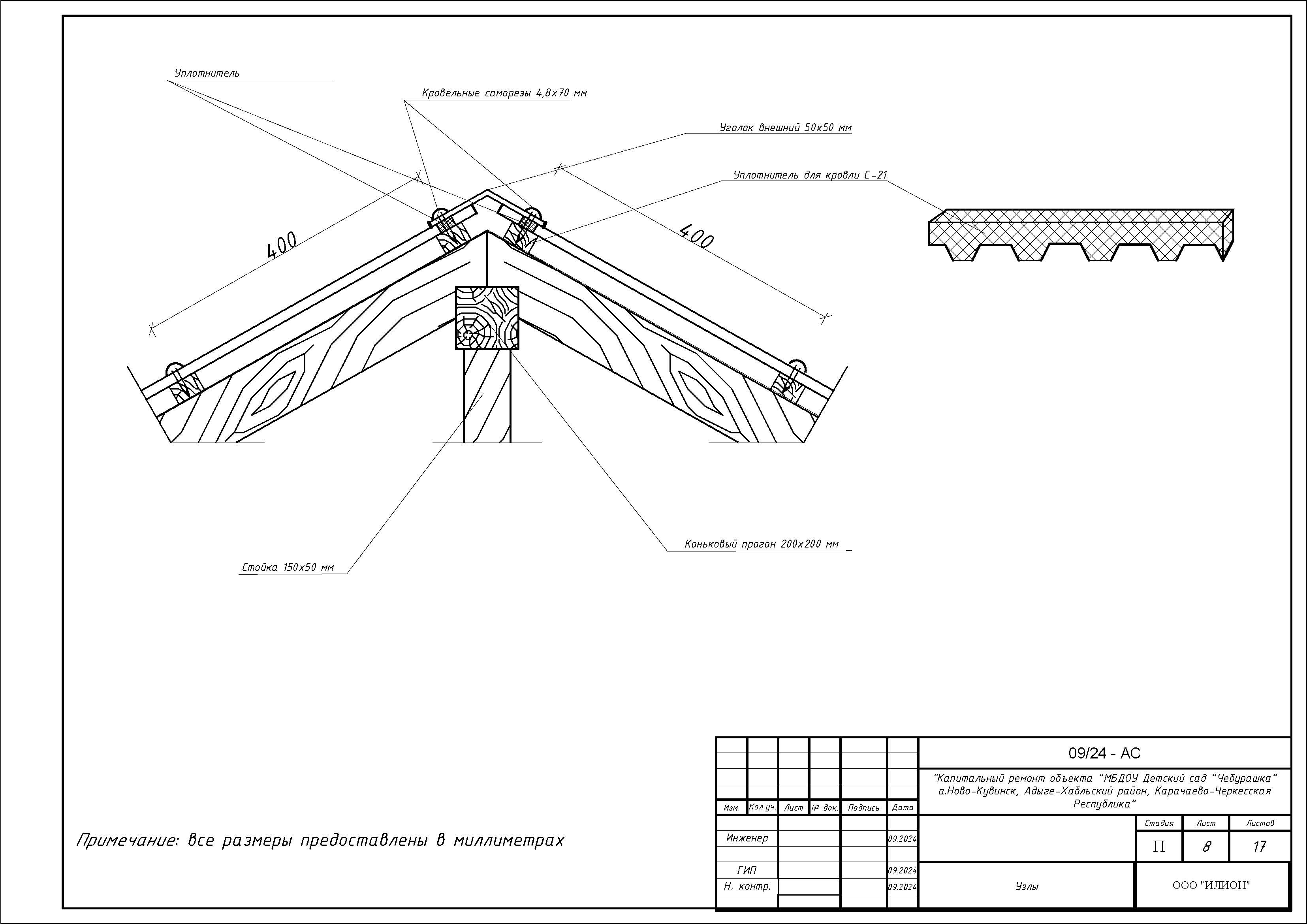
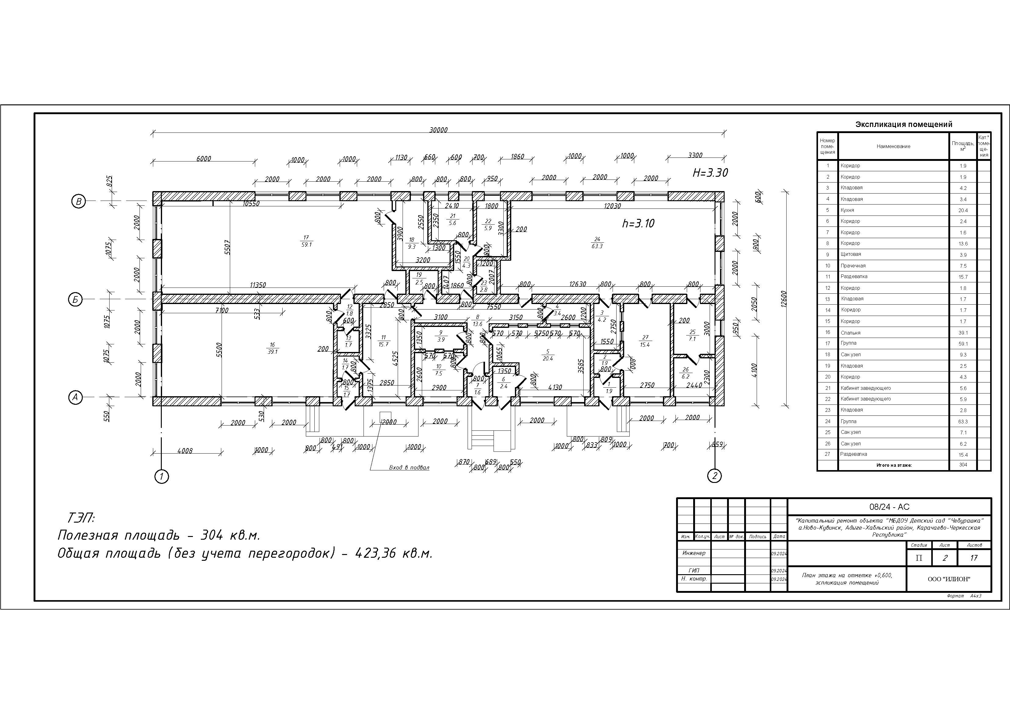
Капитальный ремонт детского сада "Чебурашка" КЧР

Описание

Разработка проекта капитального ремонта детского сада "Чебурашка", Карачаево-Черкесская республика. В том числе проект коммуникаций, электросети, дизайн интерьера и экстерьера. Задача выполнена в срок, проект прошел главную государственную экспертизу.

Презентация проекта

Чебурашка Аскеровская 4K 1 (ver.2).jpg
3.jpg
5.jpg
6.jpg
7.jpg
9.jpg
13.jpg

Оценили проект:

0