Рейтинг: 66
не верифицирован
Всего отзывов: 0
  • Работ в портфолио: 6
  • Типовых услуг: 2
  • Работ на продажу: 0
  • Образование: Магистратура
  • Стаж работы: 6 лет
  • Юридический статус:Юридическое лицо
Был на сайте:

Проект индивидуального жилого дома

Описание

Проект индивидуального двухэтажного жилого дома, сложной конфигурации в
плане, с бассейном и террасой.
Основные технико-экономические показатели:
- площадь застройки -743,53 м2 ;
- общая площадь - 659,43 м2 ;
- жилая площадь - 136,8 3м2 ;
- строительный объём - 3978,25 м3

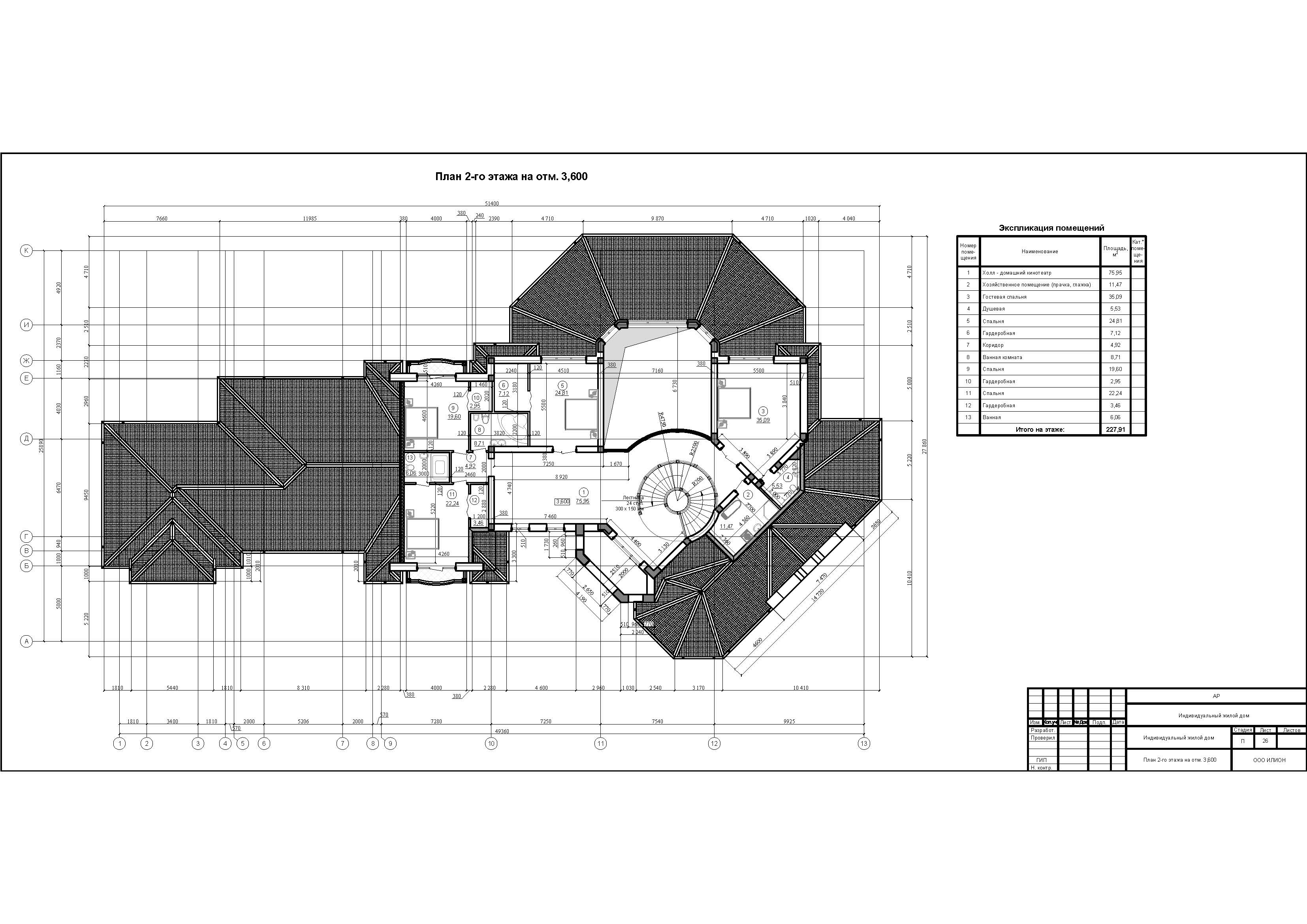
Высота помещений первого этажа - 3,30 (м), высота помещений 2-го - 3,30 (м).
На первом этаже расположены следующие помещения: прихожая, холл,
лестничная клетка, гардеробная, кухня-столовая, родительская спальня,
бассейн, терраса, ванная, уборные, парилка, комнаты для отдыха, подсобное
помещение для уборочного инвентаря.
На 2-ом этаже расположены холл-домашний кинотеатр, спальни, гардеробные,
ванные, хозяйственное помещение.
Эвакуация из жилого дома осуществляется из прихожей непосредственно
наружу.
Вентиляция помещений естественная: через вентканалы на кровлю, через
окна и двери. На усмотрение заказчика оборудовать помещения приборами
кондиционирования воздуха.

Решение

Здание решено по жесткой конструктивной схеме с несущими продольными и
поперечными стенами.
Фундаменты - ленточные из монолитного бетона, бетон тяжелый класса В22.5.
По верху стен фундаментов и в уровне перекрытий выполнить монолитные
антисейсмические ж/б пояса по узлам серии 2.140-5с вып. I.
Горизонтальную гидроизоляцию выполнить из слоя цементно-песчаного раствора состава
1:2, толщиной 20мм.
Вертикальную гидроизоляцию стен фундаментов выполнить обмазкой горячим битумом
за 2 раза.
Наружные стены толщиной 380мм выполнить из кирпича на цементно-песчаном
растворе марки 50. Облицовка наружных стен - облицовка из плоского камня.
Перегородки выполнены из глиняного кирпича (ГОСТ 530-95) толщиной 120мм на
цементно-песчаном растворе марки 50. Все перегородки армировать 2Ø4 Вр-I ГОСТ
6727-80* через 5 рядов кладки по вертикали и соединить с наружными стенами.
Крепление перегородок предусмотреть к стенам и потолку.
Категория кладки - II. Каждый ряд кладки выполнять с перевязкой швов 1/2 кирпича.
Кладку стен вести по однорядной (цепной) схеме перевязки. В сопряжениях наружных и
внутренних стен предусмотреть армирование сетками по узлам серии 2.130-6с вып.1
через каждые 7 рядов кладки по высоте.
Перекрытие 1-го этажа - монолитная железобетонная плита.
Покрытие 2-го этажа- монолитная железобетонная плита.
Наружная отделка:
- цоколь - "дагестанский" камень - грубого типа.
- стены - "дагестанский" камень - плоского типа.
- покрытие кровли - мягкая кровля "Katepal".
Внутренняя отделка стен и перегородок - улучшенная штукатурка с последующей окраской
водоэмульсионными составами; облицовка керамической плиткой на всю высоту помещения
(в санузлах и в помещениях с влажным режимом).

Презентация проекта

1.jpg
2.jpg
3.jpg
4.jpg
5.jpg
6.jpg
7.jpg

Оценили проект:

0