Рейтинг: 66
не верифицирован
Всего отзывов: 0
  • Работ в портфолио: 6
  • Типовых услуг: 2
  • Работ на продажу: 0
  • Образование: Магистратура
  • Стаж работы: 6 лет
  • Юридический статус:Юридическое лицо
Был на сайте:

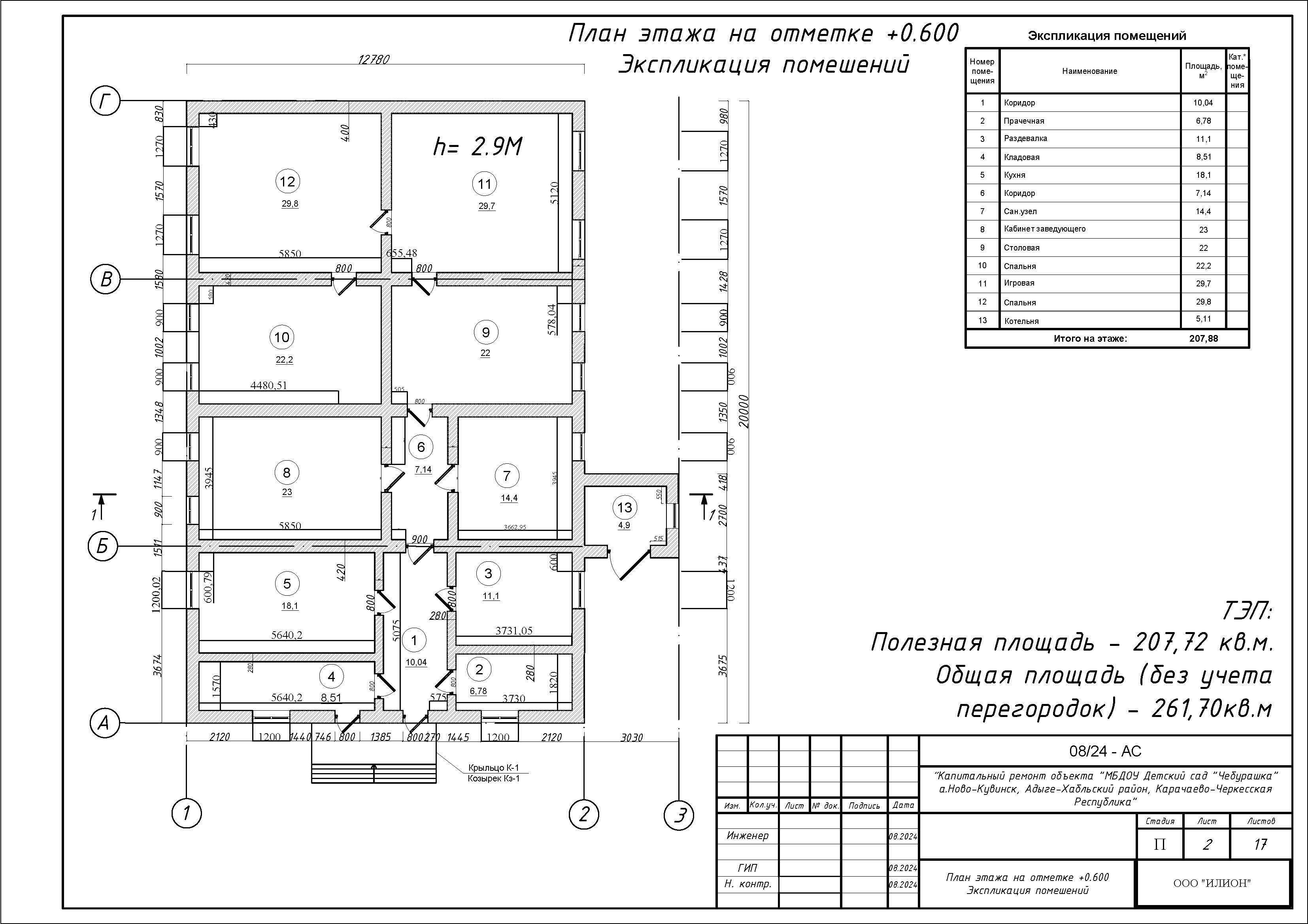
Капитальный ремонт детского сада а. Апсуа КЧР

Описание

Разработка проекта капитального ремонта детского сада в ауле Апсуа, Карачаево-Черкесская республика. В том числе проект коммуникаций, электросети, дизайн интерьера и экстерьера. Задача выполнена в срок, проект прошел главную государственную экспертизу.

Презентация проекта

3.jpg
4.jpg
2.jpg
13.jpg
6.jpg
7.jpg
8.jpg
2 Апсуа @4K.jpg
4 Апсуа @4K.jpg

Оценили проект:

0