Рейтинг: 66
Паспорт верифицирован
Всего отзывов: 0
  • Работ в портфолио: 6
  • Типовых услуг: 0
  • Работ на продажу: 0
Была на сайте:

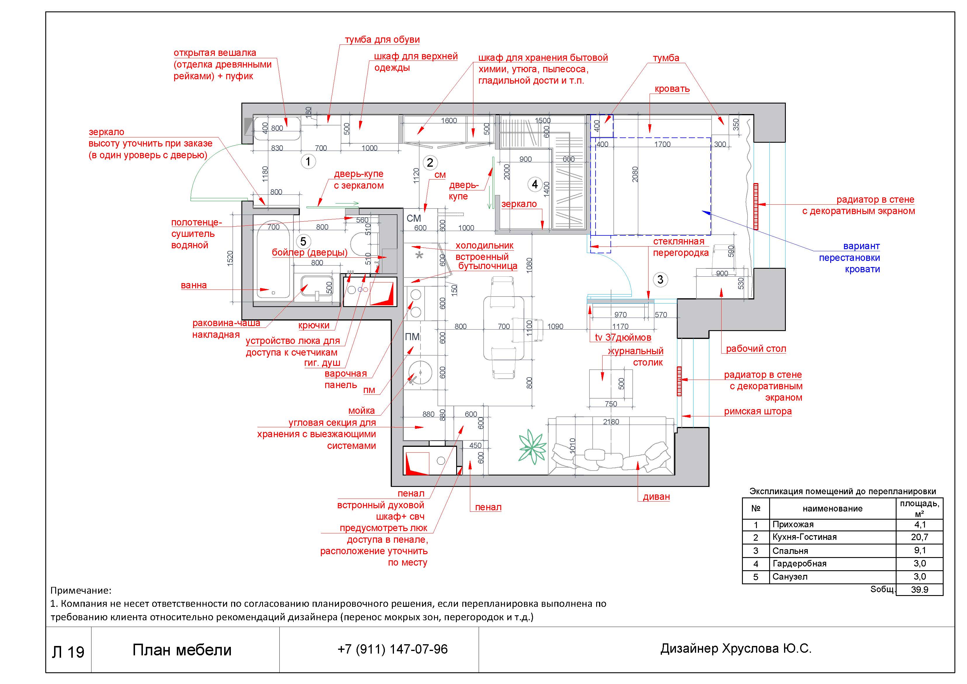
Дизайн-проект однокомнатной квартиры

Описание

Проект выполнен в современном стиле с элементами стиля лофт, минимализм, а также арабских мотивов
Стояла задача сделать функциональную планировку для постоянного проживания двух взрослых людей

Презентация проекта

Однокомнатная квартира Динара_Страница_09.jpg
Однокомнатная квартира Динара_Страница_11.jpg
Однокомнатная квартира Динара_Страница_12.jpg
Однокомнатная квартира Динара_Страница_13.jpg
Однокомнатная квартира Динара_Страница_17.jpg
Однокомнатная квартира Динара_Страница_19.jpg
Однокомнатная квартира Динара_Страница_25.jpg
Однокомнатная квартира Динара_Страница_26.jpg
Однокомнатная квартира Динара_Страница_29.jpg
Однокомнатная квартира Динара_Страница_30.jpg

Оценили проект:

0