Рейтинг: 66
Паспорт верифицирован
Всего отзывов: 0
  • Работ в портфолио: 6
  • Типовых услуг: 0
  • Работ на продажу: 0
Была на сайте:

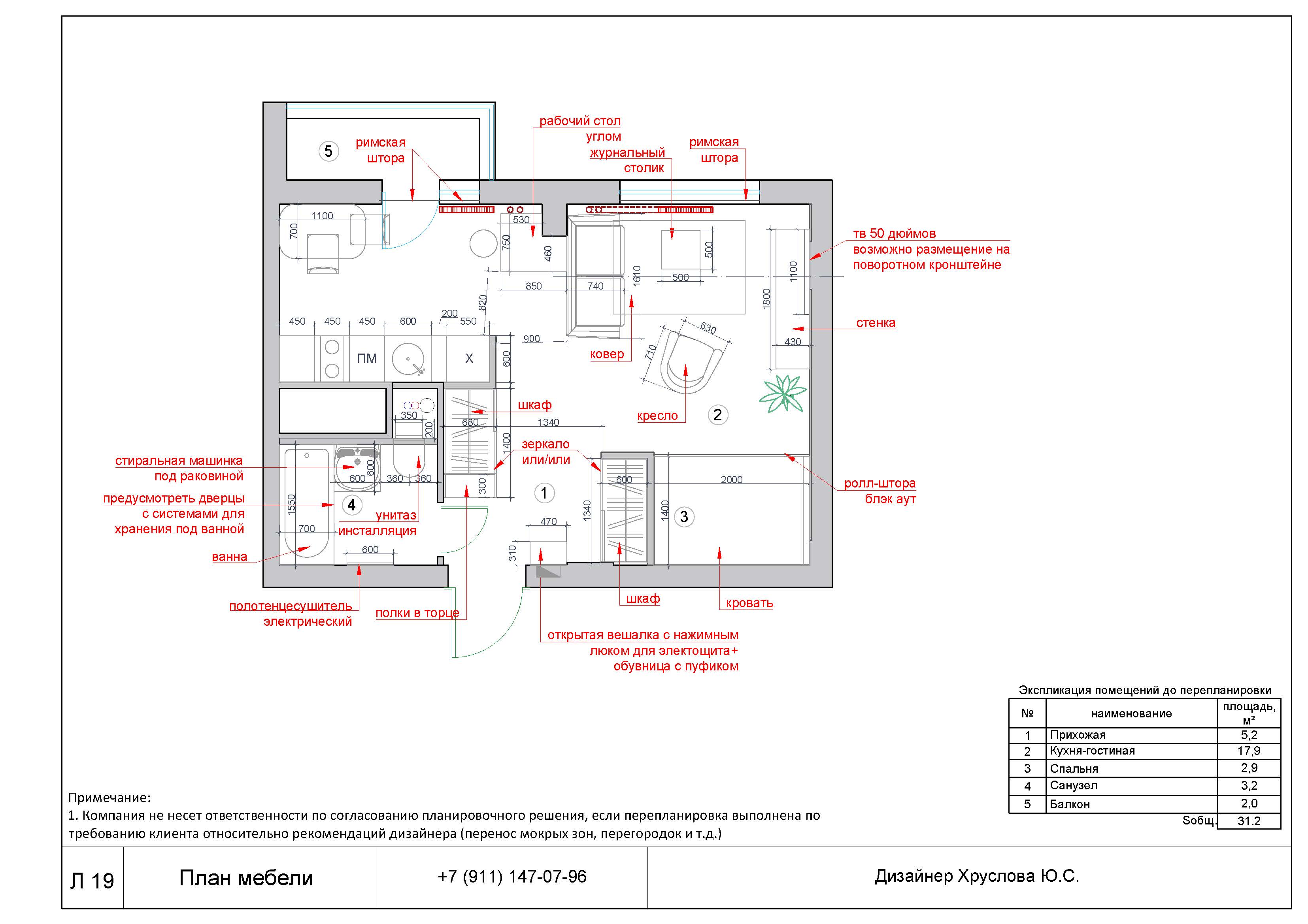
Дизайн-проект однокомнатной квартиры

Описание

Дизайн-проект однокомнатной квартиры
Заказчица любит абстрактную живопись. Вдохновением для проекта послужило творчество нидерландского художника Пита Мондриана
Стены, пол и потолок выполнены в светлых оттенках для акцентов красный, синий и желтый цвета

Презентация проекта

Однокомнатная квартира Анна_Страница_10.jpg
Однокомнатная квартира Анна_Страница_11.jpg
Однокомнатная квартира Анна_Страница_13.jpg
Однокомнатная квартира Анна_Страница_14.jpg
Однокомнатная квартира Анна_Страница_15.jpg
Однокомнатная квартира Анна_Страница_16.jpg
Однокомнатная квартира Анна_Страница_17.jpg
Однокомнатная квартира Анна_Страница_18.jpg
Однокомнатная квартира Анна_Страница_19.jpg
Однокомнатная квартира Анна_Страница_25.jpg

Оценили проект:

0