Рейтинг: 1 165
Паспорт верифицирован
Всего отзывов: 0
  • Работ в портфолио: 5
  • Типовых услуг: 0
  • Работ на продажу: 0
Была на сайте:

Описание

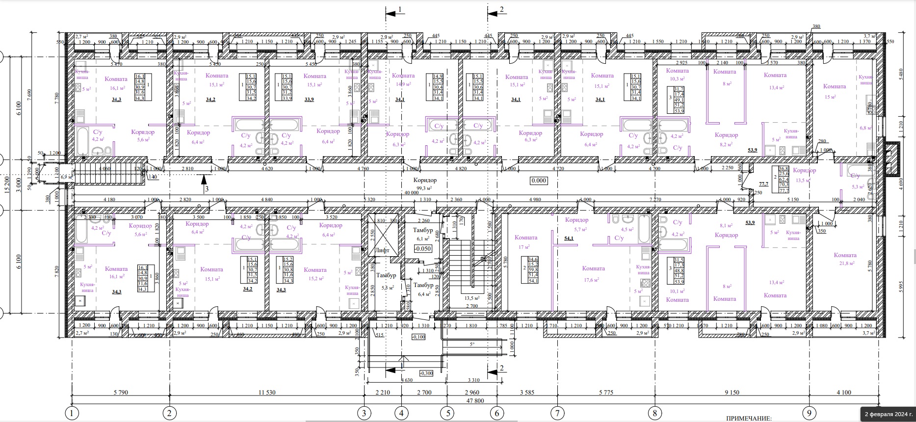
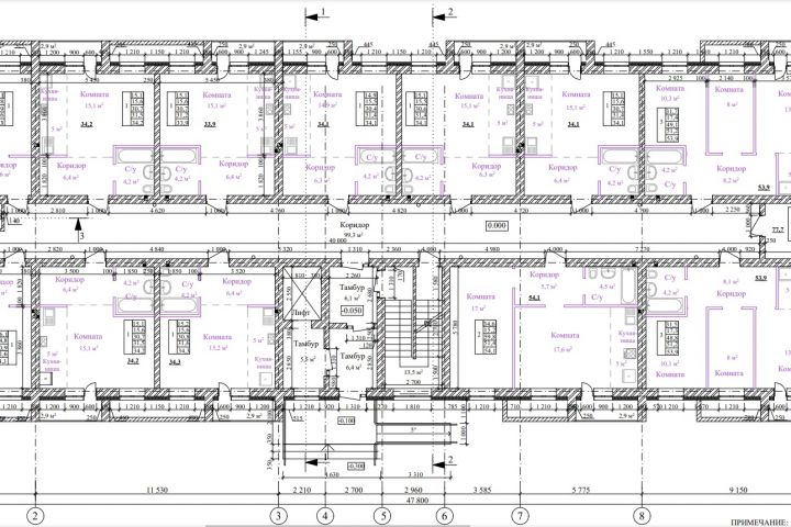
Заказчик: Застройщик ЖК "Английский двор"
Задача: сделать Обмерный план 13 квартир на этаже + визуализация интерьера каждой квартиры сверху.

Решение

Спроектировала планировку в ArchiCAD, визуализацию в 3ds Max, планировочное решение и стиль интерьера подобрала самостоятельно

Результат

Заказчик утвердил без правок, проект реализован в 2024 году. Результат работы показан на сайте застройщика: https://a1dev.ru/layouts

Презентация проекта

WhatsApp Image 2025-03-26 at 19.19.15.jpeg
Планировки.jpg

Оценили проект:

0