Рейтинг: 1 165
Паспорт верифицирован
Всего отзывов: 0
  • Работ в портфолио: 5
  • Типовых услуг: 0
  • Работ на продажу: 0
Была на сайте:

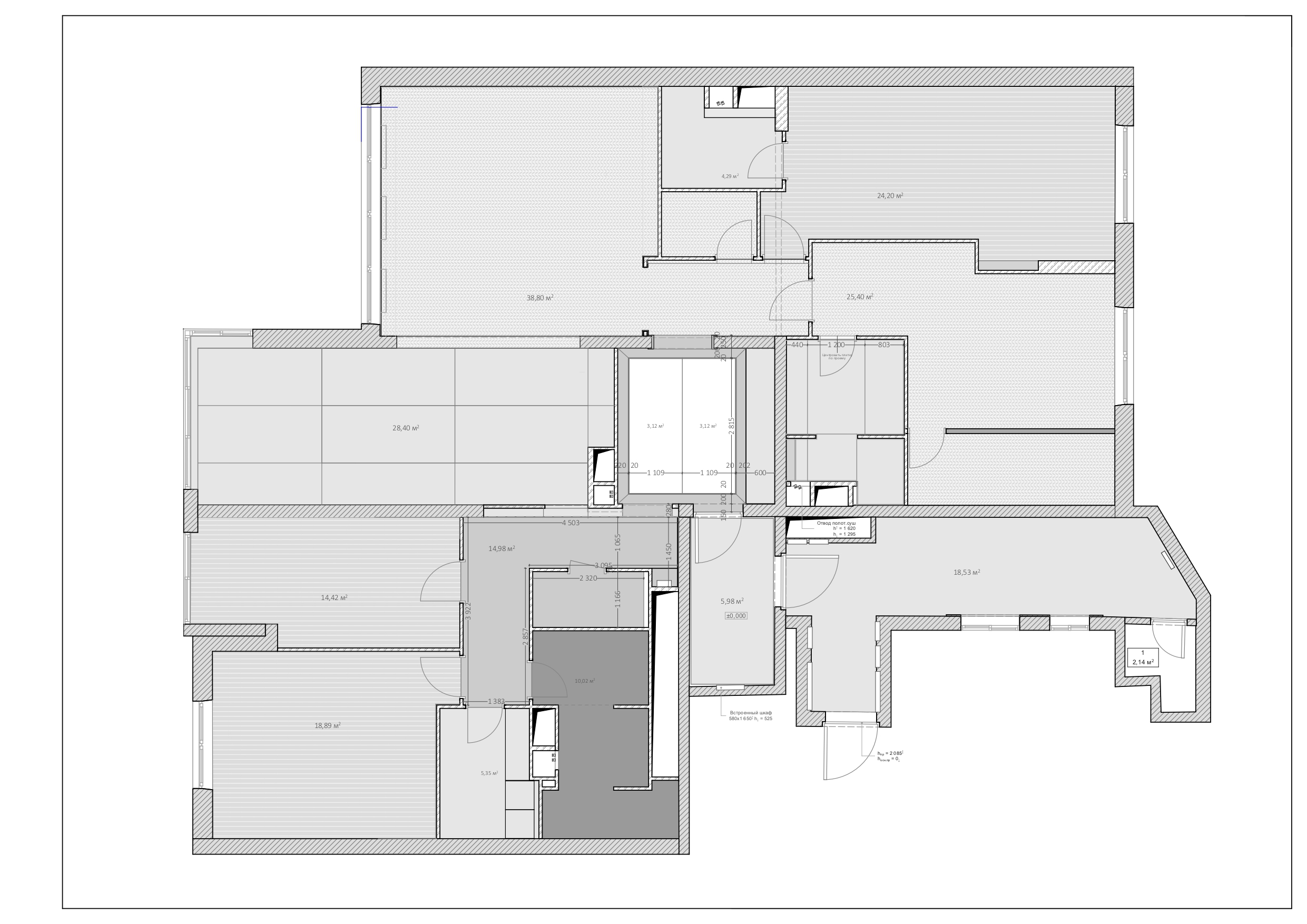
Описание

Была задача максимально компактно разложить слэбы в нескольких вариантах.

Решение

С помощью ArchiCAD сделала раскладку

Результат

По результату заказчик имеет 2 варианта раскладки слэбов, с минимальным количеством подрезки, так как камень натуральный и дорогой, главная задача была сделать раскладку с минимальной подрезкой. Completed!

Презентация проекта

План напольных покрытий _page-0001.jpg
План напольных покрытий_page-0001.jpg

Оценили проект:

0