Рейтинг: 270
не верифицирован
Всего отзывов: 1 0
Профессионализм: 10 Коммуникация: 10
  • Работ в портфолио: 6
  • Типовых услуг: 4
  • Работ на продажу: 0
  • Возраст: 41 год
  • Зарегистрирован: 27.02.2025
Была на сайте:

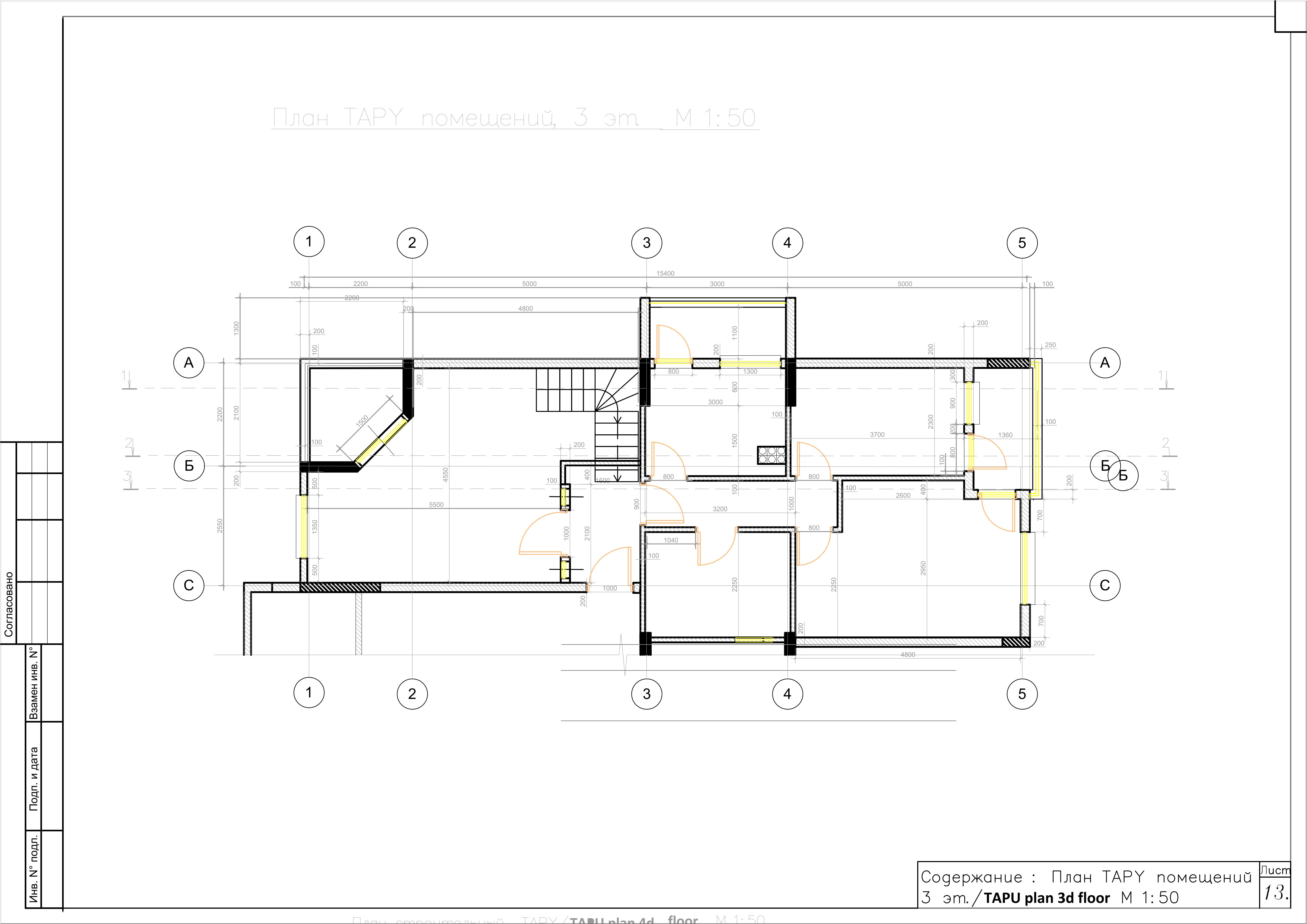
Эскизный дизайн проект квартиры в Мармарис

Описание

Разработка и создание архитектурного дизайн проекта двухэтажной квартиры в стиле минимализм.

Решение

При разработке проектной части данного объекта я использовала приемы , которые соответствуют организации эргономики пространства в сочетании с приемами функционального использования проектируемого помещения. Основой концепции дизайнерского решения приоритетным стало создание ощущения максимального наполнения ощущения легкости в интерьере , чему идеально соответствует использованный мною стиль минимализм .

Результат

Результат получился именно таким, каким хотели видеть его мои клиенты, заказавшие данный архитектурный проект.

Презентация проекта

1.jpg
3.jpg
4.jpg
5.jpg
6.jpg
7.jpg
8.jpg
9.jpg
10.jpg

Оценили проект:

0