Рейтинг: 270
не верифицирован
Всего отзывов: 1 0
Профессионализм: 10 Коммуникация: 10
  • Работ в портфолио: 6
  • Типовых услуг: 4
  • Работ на продажу: 0
  • Возраст: 41 год
  • Зарегистрирован: 27.02.2025
Была на сайте:

Описание

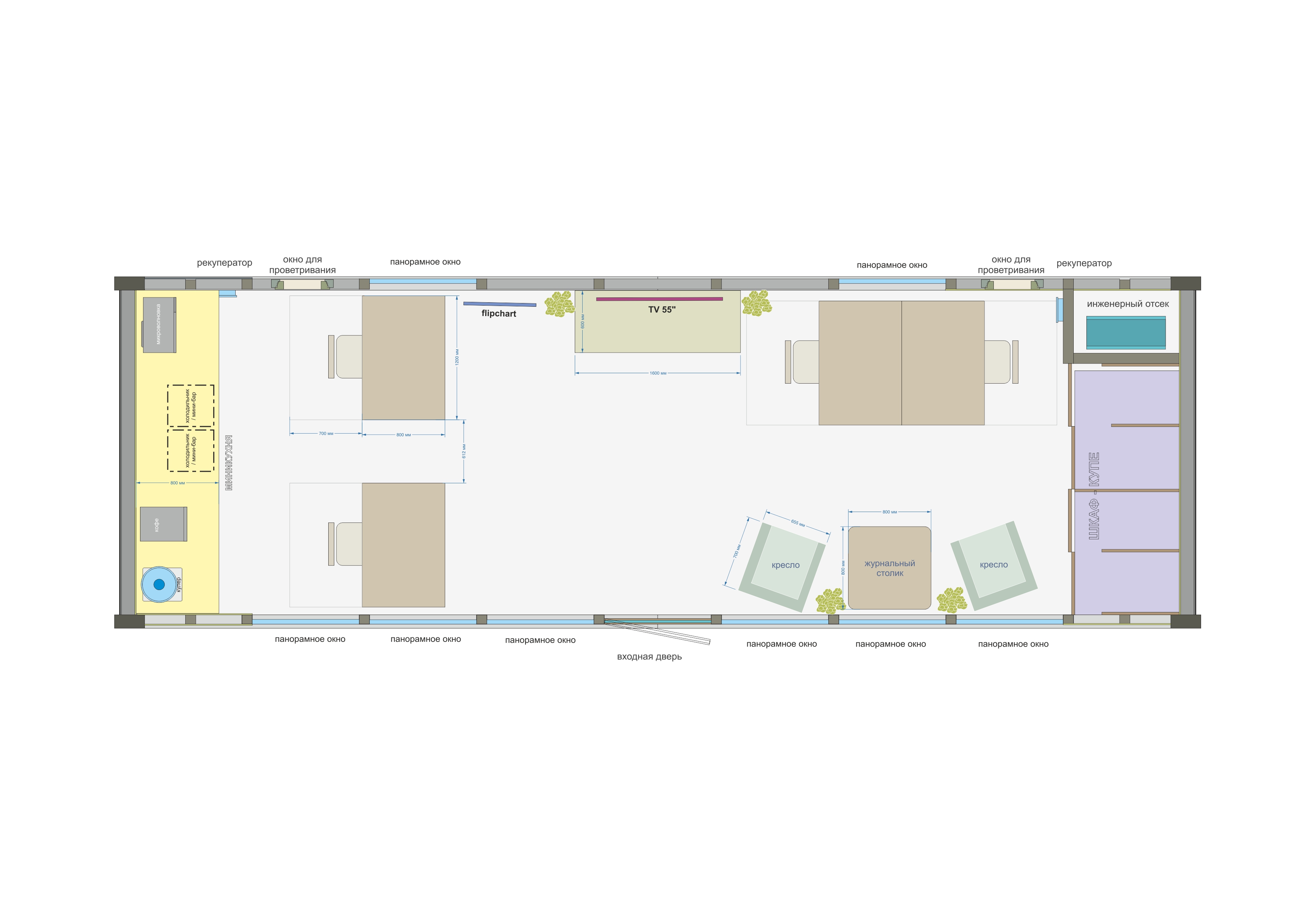
Проект "Дом-капсула" для глэмпинг-бизнеса.

Решение

Стояла задача разработать дом капсульного типа для базы отдыха глэмпинг типа в современном стиле , материал каркас дерево , с возможностью установки на водной поверхности.

Результат

Итог: современный , мобильный, компактный, комфортный для проживания дом капсульного типа. Удобен при транспортировке , установке, сборке, экологически безопасен как для здоровья находящихся в нем людей, так и для окружающей среды в целом.

Презентация проекта

photo_2025-03-16_21-20-41.jpg
photo_2025-03-16_21-19-29.jpg
1.jpg
2а.jpg
3.jpg
5.jpg
6.jpg
7.jpg
11.jpg
12.jpg

Оценили проект:

0