Интерьер частного дома
Для полной функциональности этого сайта необходимо включить JavaScript.
Москва
Альберт В
Int_Int
Рейтинг: 131
не верифицирован
Всего отзывов:
0
Активность:
Работ в портфолио:
41
Типовых услуг:
0
Работ на продажу:
0
Возраст:
45 лет
Зарегистрирован:
21.03.2016
Был на сайте:
2016-07-17 в 23:20
inbox
Предложить работу
Добавить в избранное
Добавить рекомендацию
Пожаловаться
Инженерия
21
0
Интерьер частного дома
Используемые навыки:
Чертежи/Схемы
Описание
Решение
Результат
Соавторы
Презентация проекта
Примеры реализации
Описание
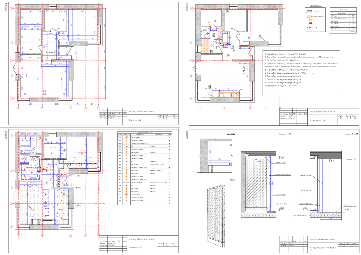
Фрагменты альбома рабочей документации.
Презентация проекта
Оценили проект:
0
×
Оценили проект
×
Авторизация
Для того чтобы оценивать проекты, вам нужно войти на сайт
Другие проекты
Все проекты
3D-моделирование концепции экстерьера пром.базы. 3/4
Дизайн-проект траттории
Варианты решения потолочного покрытия магазина. 1/2
FREELANCE.RU
Toggle navigation
Нанять фрилансера
Заказчику
Найти по специализации
Найти по услугам
Провести конкурс
Разместить задание
Виртуальный HR
Найти студию
Другое
Найти работу
Фрилансеру
Найти задание
Присоединиться к команде
Участвовать в конкурсе
Предложить услугу
Другое
Возможности
Для заказчика
Для фрилансера
Вход
Разместить задание
▲