BIM-проектирование и визуализация.Основной инструмент - ArchiCAD.
Административное здание
Жилой комплекс. Вид 1.
Жилой комплекс. Общий вид
Жилой комплекс. Вид 2.
Ресторан-пивоварня
Варианты решения потолочного покрытия магазина. 1/1
Варианты решения потолочного покрытия магазина. 1/2
Варианты решения потолочного покрытия магазина. 2/1
Варианты решения потолочного покрытия магазина. 2/2
Варианты решения потолочного покрытия магазина. 3/1
Варианты решения потолочного покрытия магазина. 3/2
Галерея здания жилого комплекса
3D-моделирование концепции экстерьера пром.базы. 1/4
3D-моделирование концепции экстерьера пром.базы. 2/4
3D-моделирование концепции экстерьера пром.базы. 3/4
3D-моделирование концепции экстерьера пром.базы. 4/4
Афиша события
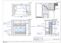
План отделки стен. Ведомость
3D-чертеж ИИ. Интерьер дома
Лист ИИ-1 проекта интерьера.
Лист ИИ-2 проекта интерьера.
Концепция планировки здания. План 2.
Концепция планировки здания. План 1.
Фасад жилого комплекса