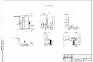
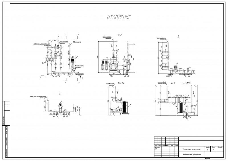
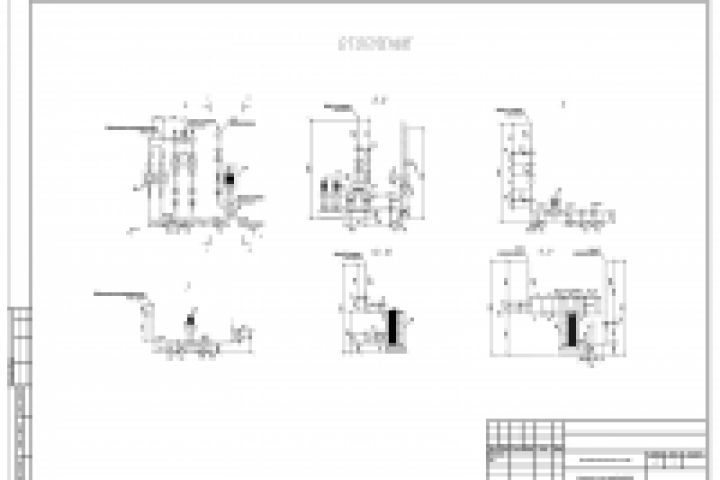
Монтажная схема трубопроводов(обвязка насосов и теплообменников)
Для полной функциональности этого сайта необходимо включить JavaScript.
Ярославль
На сайте с: 14.10.2015
Стараться стать лучшим во всем что делаешь
Вадим Чекин
foxikk
Рейтинг: 96
не верифицирован
Всего отзывов:
0
Активность:
Работ в портфолио:
6
Типовых услуг:
0
Работ на продажу:
0
Был на сайте:
2016-08-23 в 21:30
+79201085421
inbox
Предложить работу
Добавить в избранное
Добавить рекомендацию
Пожаловаться
Инженерия
17
0
Монтажная схема трубопроводов(обвязка насосов и теплообменников)
Используемые навыки:
Теплоснабжение/Отопление/Вентиляция
Описание
Решение
Результат
Соавторы
Презентация проекта
Примеры реализации
Описание
Презентация проекта
Оценили проект:
0
×
Оценили проект
×
Авторизация
Для того чтобы оценивать проекты, вам нужно войти на сайт
Другие проекты
Все проекты
Проектирование ИТП с тепловой нагрузкой 1032250 Вт
Исполнительная схема
Принципиальная схема
FREELANCE.RU
Toggle navigation
Нанять фрилансера
Заказчику
Найти по специализации
Найти по услугам
Провести конкурс
Разместить задание
Виртуальный HR
Другое
Найти работу
Фрилансеру
Найти задание
Присоединиться к команде
Участвовать в конкурсе
Другое
Возможности
Для заказчика
Для фрилансера
Вход
Разместить задание
▲