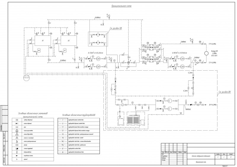
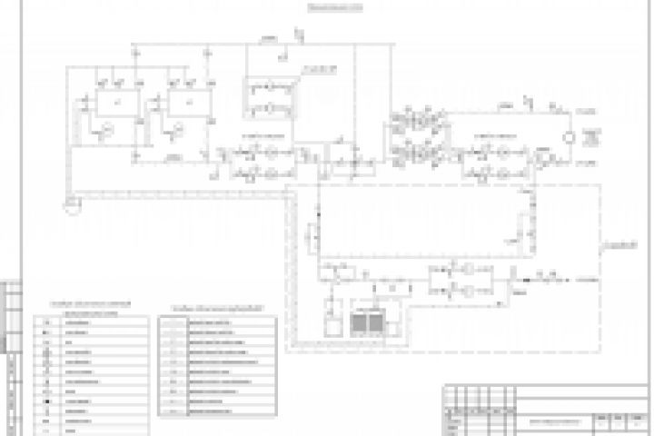
Принципиальная схема
Для полной функциональности этого сайта необходимо включить JavaScript.
Ярославль
На сайте с: 14.10.2015
Стараться стать лучшим во всем что делаешь
Вадим Чекин
foxikk
Рейтинг: 96
не верифицирован
Всего отзывов:
0
Активность:
Работ в портфолио:
6
Типовых услуг:
0
Работ на продажу:
0
Был на сайте:
2016-08-23 в 21:30
+79201085421
inbox
Предложить работу
Добавить в избранное
Добавить рекомендацию
Пожаловаться
Инженерия
15
0
Принципиальная схема
Используемые навыки:
Теплоснабжение/Отопление/Вентиляция
Описание
Решение
Результат
Соавторы
Презентация проекта
Примеры реализации
Описание
Презентация проекта
Оценили проект:
0
×
Оценили проект
×
Авторизация
Для того чтобы оценивать проекты, вам нужно войти на сайт
Другие проекты
Все проекты
Проектирование ИТП с тепловой нагрузкой 1032250 Вт
Проект блочно-модульной котельной 1,4МВт 3D
Монтажная схема трубопроводов(обвязка насосов и теплообменников)
FREELANCE.RU
Toggle navigation
Нанять фрилансера
Заказчику
Найти по специализации
Найти по услугам
Провести конкурс
Разместить задание
Виртуальный HR
Другое
Найти работу
Фрилансеру
Найти задание
Присоединиться к команде
Участвовать в конкурсе
Другое
Возможности
Для заказчика
Для фрилансера
Вход
Разместить задание
▲