Рейтинг: 54
не верифицирован
Всего отзывов: 0
  • Работ в портфолио: 4
  • Типовых услуг: 0
  • Работ на продажу: 0
Был на сайте:

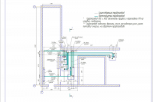
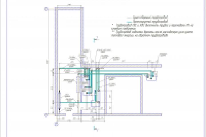
Пример чертежа раздела ТМ

Описание

План установки блочного теплового пункта с насосной станцией

Презентация проекта

pic2960827.jpg

Оценили проект:

0