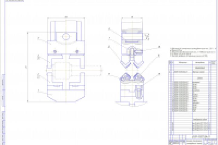
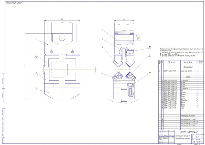
Приспособление для фрезерно-центровальной операции
Для полной функциональности этого сайта необходимо включить JavaScript.
Кременчуг
34 года
На сайте с: 29.09.2015
Евгений Пасько
jonnik1991
Рейтинг: 119
не верифицирован
Всего отзывов:
0
Работ в портфолио:
49
Типовых услуг:
0
Работ на продажу:
0
Был на сайте:
2017-06-15 в 20:30
+380971467399
inbox
www.behance.net/jonnik19911444
Вконтакте
Предложить работу
Добавить в избранное
Добавить рекомендацию
Пожаловаться
Инженерия
55
0
Приспособление для фрезерно-центровальной операции
Используемые навыки:
Чертежи/Схемы
Описание
Решение
Результат
Соавторы
Презентация проекта
Примеры реализации
Описание
Презентация проекта
Оценили проект:
0
×
Оценили проект
×
Авторизация
Для того чтобы оценивать проекты, вам нужно войти на сайт
Другие проекты
Все проекты
3д принтер 3
iPhone 5s
сканер штрихкодов 1
FREELANCE.RU
Toggle navigation
Нанять фрилансера
Заказчику
Найти по специализации
Найти по услугам
Провести конкурс
Разместить задание
Виртуальный HR
Другое
Найти работу
Фрилансеру
Найти задание
Присоединиться к команде
Участвовать в конкурсе
Предложить услугу
Другое
Возможности
Для заказчика
Для фрилансера
Вход
Разместить задание
▲