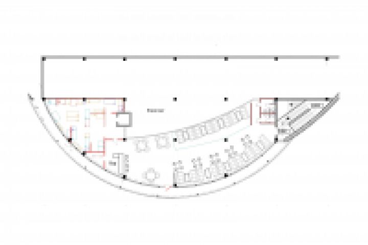
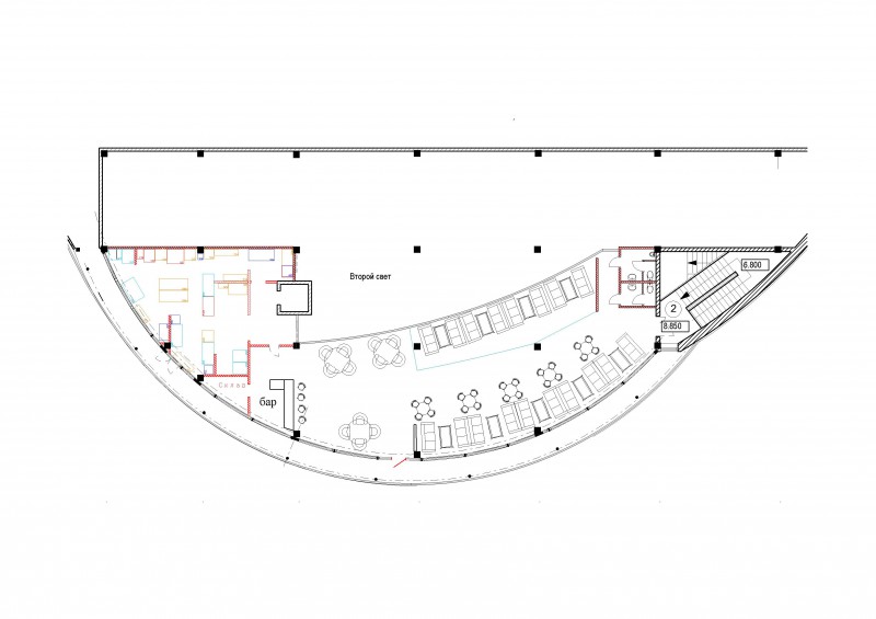
Разработка дизайн-проект ресторана"Синдбад", г.Зеленоград
Для полной функциональности этого сайта необходимо включить JavaScript.
Москва
На сайте с: 13.02.2014
RC/RestCONCEPT
tastyteam
Рейтинг: 170
не верифицирован
Всего отзывов:
0
Опубликовано заданий:
4
Активность:
Работ в портфолио:
100
Типовых услуг:
0
Работ на продажу:
0
Был на сайте:
2017-07-13 в 15:24
Предложить работу
Добавить в избранное
Добавить рекомендацию
Пожаловаться
3D графика
20
0
Разработка дизайн-проект ресторана"Синдбад", г.Зеленоград
Используемые навыки:
3D Интерьеры
Описание
Решение
Результат
Соавторы
Презентация проекта
Примеры реализации
Описание
Презентация проекта
Оценили проект:
0
×
Оценили проект
×
Авторизация
Для того чтобы оценивать проекты, вам нужно войти на сайт
Другие проекты
Все проекты
Разработка дизайна выставочного стенда для Гродно-Азот
страница 14
Разработка дизайн интерьера ресторана для ТРЦ, г.Зеленоград
FREELANCE.RU
Toggle navigation
Нанять фрилансера
Заказчику
Найти по специализации
Найти по услугам
Провести конкурс
Разместить задание
Виртуальный HR
Другое
Найти работу
Фрилансеру
Найти задание
Присоединиться к команде
Участвовать в конкурсе
Другое
Возможности
Для заказчика
Для фрилансера
Вход
Разместить задание
▲