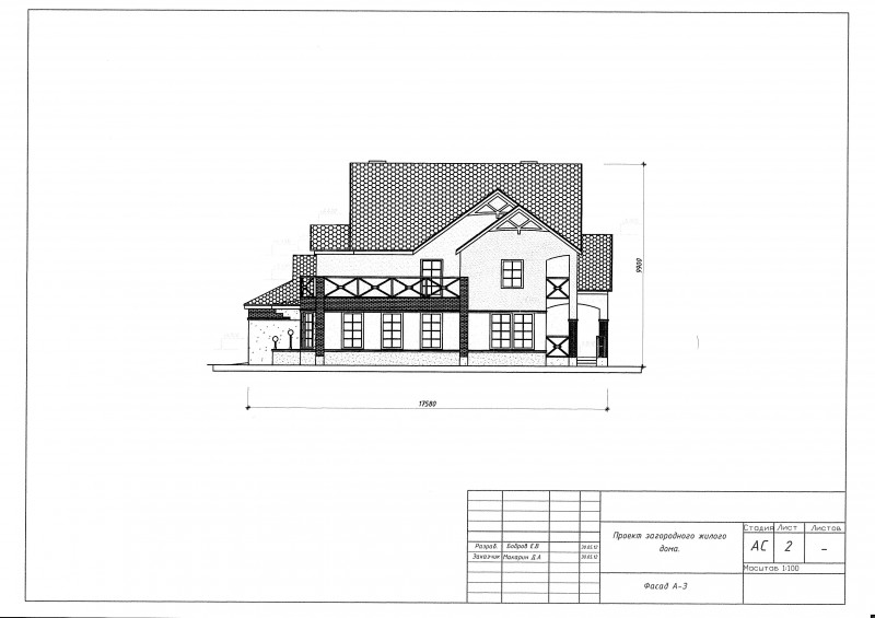
Коттедж 2 чертёж 2
Для полной функциональности этого сайта необходимо включить JavaScript.
Санкт-Петербург
Невозможное возможно
Евгений Бобров
Bobroff79
Рейтинг: 162
не верифицирован
Всего отзывов:
0
Работ в портфолио:
92
Типовых услуг:
0
Работ на продажу:
0
Возраст:
46 лет
Зарегистрирован:
02.01.2015
Был на сайте:
2017-07-31 в 12:18
79112896680
inbox
Вконтакте
Предложить работу
Добавить в избранное
Добавить рекомендацию
Пожаловаться
Дизайн пространства
24
0
Коттедж 2 чертёж 2
Используемые навыки:
Архитектура зданий и сооружений
Описание
Решение
Результат
Соавторы
Презентация проекта
Примеры реализации
Описание
Презентация проекта
Оценили проект:
0
×
Оценили проект
×
Авторизация
Для того чтобы оценивать проекты, вам нужно войти на сайт
Другие проекты
Все проекты
п. Лисий нос 12 сот. эск.
черт.5
эск.6
FREELANCE.RU
Toggle navigation
Нанять фрилансера
Заказчику
Найти по специализации
Найти по услугам
Провести конкурс
Разместить задание
Виртуальный HR
Найти студию
Другое
Найти работу
Фрилансеру
Найти задание
Присоединиться к команде
Участвовать в конкурсе
Предложить услугу
Другое
Возможности
Для заказчика
Для фрилансера
Вход
Разместить задание
▲