Создаю красоту и функциональность на заказ.

Ольга Михеева olgadesigne

Рейтинг: 1 106
не верифицирован
Всего отзывов: 0
  • Активность:
  • Работ в портфолио: 6
  • Типовых услуг: 6
  • Работ на продажу: 0
  • Стаж работы: 25 лет
  • Зарегистрирован: 13.04.2024
  • Образование: Магистратура
  • Юридический статус:Частное лицо
  • Стоимость услуг (руб): 1 200 за час
Была на сайте:

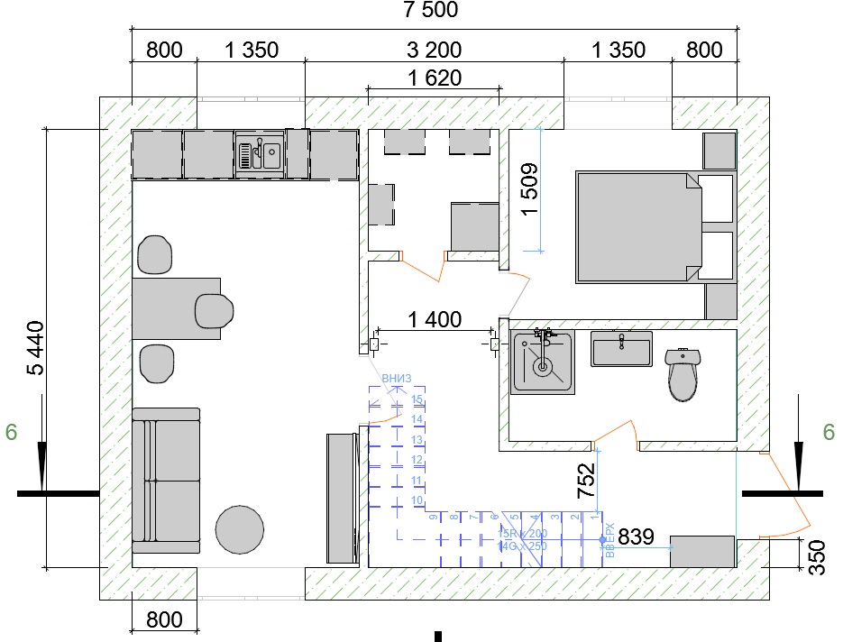
план первого этажа двухэтажного дома.

Используемые навыки:

Описание

На небольшой площади первого этажа - 52 кв. метра разместили: прихожую, лестницу на второй этаж, санузел, спальню, кухню-гостиную и техническую комнату для водопроводной и отопительной систем.

Презентация проекта

pic4588283.jpg
Вариант 2 (1).jpg

Оценили проект:

1