Работа на совесть

Сергей Власов vlasov_serzh1988

Рейтинг: 78
не верифицирован
Всего отзывов: 1 0
Выполнил заданий: 1
  • Работ в портфолио: 3
  • Типовых услуг: 0
  • Работ на продажу: 0
  • Возраст: 38 лет
  • Зарегистрирован: 28.02.2017
Был на сайте:

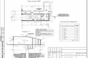
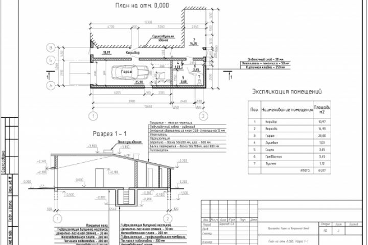
Гараж со встроенной баней

Описание

Проект гаража со встроенной баней, пристраиваемый к существующему зданию. Разработаны чертежи разделов АР, КЖ, КМ и КД.

Презентация проекта

pic3171958.jpg

Оценили проект:

0