Работа на совесть

Сергей Власов vlasov_serzh1988

Рейтинг: 78
не верифицирован
Всего отзывов: 1 0
Выполнил заданий: 1
  • Работ в портфолио: 3
  • Типовых услуг: 0
  • Работ на продажу: 0
  • Возраст: 38 лет
  • Зарегистрирован: 28.02.2017
Был на сайте:

Реконструкция коттеджа

Описание

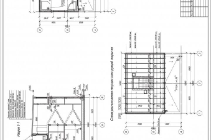
Проект реконструкции коттежджа выполнен на основании проведенного мною же технического обследования. Необходимо было выполнить частичную перепланировку и надстроить 3-й этаж. В проекте разработаны чертежи разделов ТО (Техническое обследование), ОБМ (Обмерные работы), АР, КМ и КД. Проект воплощен в жизнь в 2016 году и уже радует хозяев дома.

Презентация проекта

pic3171965.jpg

Оценили проект:

0