Рейтинг: 77
не верифицирован
Всего отзывов: 0
  • Работ в портфолио: 27
  • Типовых услуг: 0
  • Работ на продажу: 0
Был на сайте:

Описание

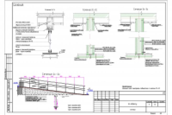
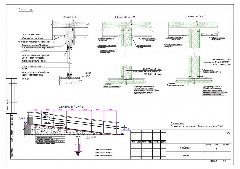
Лист Сечения входит в состав проектной и рабочей документации - необходим для согласования состава вновь монтируемых элементов, конструкций

Презентация проекта

pic1863203.jpg

Оценили проект:

0